マルイト江戸堀ビル 5階-No.2175
中阪 浩之ナカサカ ヒロユキ
マルイト江戸堀ビルの豆知識
「マルイト江戸堀ビル」は、大阪市西区江戸堀1丁目にございます、賃貸事務所ビル。
四ツ橋筋・江戸堀1交差点を西に入ってスグの7階建て。
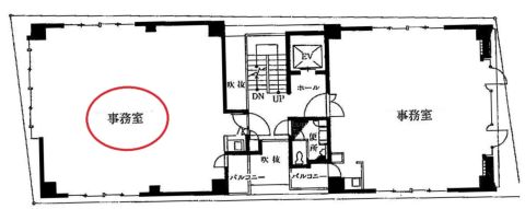
ワンフロアに、約25坪と約20坪の2テナントのみ。
建物中央部にエレベーターやトイレ等を配置したセンターコアタイプ。
各室が独立した設計の為、機密性が確保された人気の間取りです。
大阪市営地下鉄・四つ橋線の「肥後橋駅」7番出入口より徒歩1分。
御堂筋も徒歩圏内と、フットワークの良いビジネス拠点。
肥後橋周辺は、フェスティバルホールや朝日新聞大阪本社の入る39階建て・超高層複合ビル・中之島フェスティバルタワーが2012年に竣工。
2017年には、中之島フェスティバルタワー・ウエストも完成予定と、注目のエリアです。
マルイト江戸堀ビル 基本情報
| 種別 | 貸事務所(物件番号:2175) |
|---|---|
| 物件名 | マルイト江戸堀ビル
リーズナブルな価格でご提案出来ます。 |
| 住所 | 大阪市西区江戸堀1-10-11 |
| 所在階 | 5階部分1号室 |
| 契約面積 | 25.88 坪・ 85.56 ㎡ |
| 最寄駅 |
四ツ橋線 『
肥後橋 』
1 分
御堂筋線 『 淀屋橋 』 6 分 |
| 構造 | 鉄筋コンクリート造 7階建 |
| 築年数 | 1987/5 【新耐震基準】 |
| 設備
|
|
| エレベーター | 1基 9人乗 |
営業マンの一言 四ツ橋筋に近いセンターコアタイプの賃貸オフィスビル。大阪「肥後橋」駅スグのグッドロケーション賃貸事務所 |
|

※取引態様:仲介
※上記、金額は募集条件です。 条件交渉など、詳細についてはお問合せ下さい。
※広告作成中に契約済みの場合はご容赦下さい。
※図面等現況が相違する場合は現況優先にてご容赦下さい。
マルイト江戸堀ビルの所在地周辺
物件を再検索する
マルイト江戸堀ビル 関連物件
マルイト江戸堀ビル 近隣のよく似た坪数の貸事務所
-
肥後橋レックスビル
大阪市西区江戸堀1
四ツ橋線「肥後橋」徒歩1分
27.0坪 -
肥後橋辰巳ビル
大阪市西区江戸堀1
四ツ橋線「肥後橋」徒歩1分
27.98坪 -
9999ビル(フォーナインズ)
大阪市西区江戸堀1
四ツ橋線「肥後橋」徒歩2分
27.72坪 -
肥後橋ルーセントビル
大阪市西区京町堀1
四ツ橋線「肥後橋」徒歩2分
27.28坪 -
明星ビル
大阪市西区京町堀1
四ツ橋線「肥後橋」徒歩3分
25.0坪 -
肥後橋シミズビル
大阪市西区土佐堀1
四ツ橋線「肥後橋」徒歩1分
29.37坪 -
医交社ビル
大阪市西区土佐堀1
四ツ橋線「肥後橋」徒歩5分
27.92坪


























