office hirajyu西本町 7階-No.22262
office hirajyu西本町 基本情報
| 種別 | 貸事務所(物件番号:22262) |
|---|---|
| 物件名 | office hirajyu西本町 |
| 住所 | 大阪市西区西本町1-12-6 |
| 所在階 | 7階部分フロア号室 |
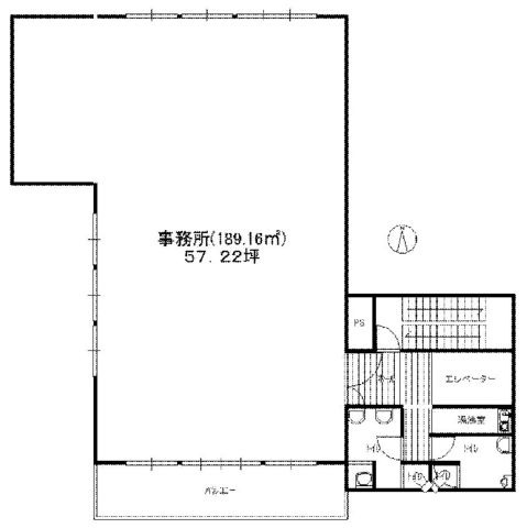
| 契約面積 | 60.0 坪・ 198.35 ㎡ |
| 最寄駅 |
四ツ橋線 『
本町 』
2 分
中央線 『 本町 』 2 分 |
| 構造 | 鉄筋コンクリート造 9階建 |
| 築年数 | 1988/4 【新耐震基準】 |
| 設備
|
|
| エレベーター | 1基 |
営業マンの一言 大阪メトロ四ツ橋線 本町駅徒歩2分 中央線、御堂筋線利用可能 ワンフロア、ロープライス&ローコスト貸事務所! |
|

※取引態様:仲介
※上記、金額は募集条件です。 条件交渉など、詳細についてはお問合せ下さい。
※広告作成中に契約済みの場合はご容赦下さい。
※図面等現況が相違する場合は現況優先にてご容赦下さい。
office hirajyu西本町の所在地周辺
ストリートビューを表示▼





中阪 浩之









