ニュープラザビル 13階-No.22347
堀中 忠久ホリナカ タダヒサ
ニュープラザビルの豆知識
「ニュープラザビル」は、大阪市北区太融寺にございます賃貸事務所。
扇町通・神山交差点からスグの14階建て、オフィスビル。
築後30年以上になりますが、2011年にリニューアル完了。
明るく清潔感あふれるエントランスで、企業イメージもアップします。
大阪で人気№1の梅田に位置し、エレベーター2基、基準階面積も約100坪のビルで、広さが10坪ほどの貸室が中心となる、希少な賃貸オフィス。
新規事務所開設や少人数の大阪営業所にオススメです。
大阪市営地下鉄谷町線の「東梅田駅」より徒歩7分。
御堂筋線など各線梅田駅やJR大阪駅へも徒歩圏内の好立地な大阪ビジネス拠点です。
ニュープラザビル 基本情報
| 種別 | 貸事務所(物件番号:22347) |
|---|---|
| 物件名 | ニュープラザビル
大型ルーフバルコニー付・眺望抜群 |
| 住所 | 大阪市北区太融寺町2-21 |
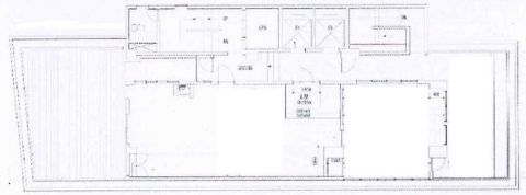
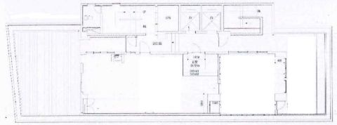
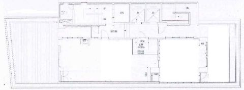
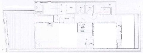
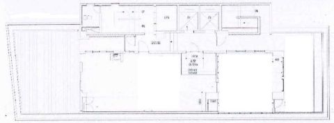
| 所在階 | 13階部分号室 その他、貸室 |
| 契約面積 | 35.06 坪・ 115.91 ㎡ |
| 賃料 | 総額
385,660 円 (税抜)・坪単価
11,000 円/坪 (税抜) 総額 424,226 円(税含む) |
| 共益費 | 総額 賃料に含む (税抜)・坪単価 賃料に含む (税抜) 総額 賃料に含む (税含む) |
| 月額合計 | 総額 385,660 円(税抜)・坪単価 11,000 円(税抜) 総額 424,226 円 (税含む) |
| 敷金 | 1,156,980 円 |
| 礼金 | 848,452円(税含む) |
| 費用備考 | 賃貸保証加入要/火災保険加入要 |
| 最寄駅 |
谷町線 『
東梅田 』
5 分
御堂筋線 『 梅田 』 7 分 環状線 『 大阪 』 9 分 |
| 構造 | 鉄筋コンクリート造 14階建 |
| 築年数 | 1979/7 (リニューアル: 2011/11 ) |
| 設備
|
|
| エレベーター | 2基 |
営業マンの一言 大阪駅・梅田駅が徒歩圏内の好立地な賃貸事務所。2016年12月大規模修繕工事完了! |
|

※取引態様:仲介
※上記、金額は募集条件です。 条件交渉など、詳細についてはお問合せ下さい。
※広告作成中に契約済みの場合はご容赦下さい。
※図面等現況が相違する場合は現況優先にてご容赦下さい。
ニュープラザビルの所在地周辺
ニュープラザビル その他の部屋情報
| 階 | 号室 | 坪数 | ㎡数 | 賃料 | 共益費 | 敷金 | |
|---|---|---|---|---|---|---|---|
| 11階 | 03 | 14.95坪 | 49.43㎡ | 120,000 円 | 30,000 円 | 600,000 円 | ![]() |
| 11階 | 05 | 14.95坪 | 49.43㎡ | 105,000 円 | 30,000 円 | 525,000ヶ月 | ![]() |
物件を再検索する
ニュープラザビル 近隣のよく似た坪数の貸事務所
-
梅田辰巳ビル
大阪市北区神山町
谷町線「東梅田」徒歩4分
33.0坪 -
リアライズ梅田東ビル
大阪市北区曾根崎1
谷町線「東梅田」徒歩6分
32.85坪 -
梅田パシフィックビル
大阪市北区曾根崎2
谷町線「東梅田」徒歩3分
31.65坪 -
ST曽根崎ビル
大阪市北区曾根崎2
谷町線「東梅田」徒歩3分
39.35坪 -
富士林プラザ8番館
大阪市北区太融寺町
谷町線「東梅田」徒歩8分
34.9坪 -
日本生命梅田第2ビル
大阪市北区太融寺町
谷町線「東梅田」徒歩4分
31.0坪 -
梅田イーストビル
大阪市北区太融寺町
谷町線「東梅田」徒歩6分
32.64坪 -
日本生命梅田ビル
大阪市北区堂山町
谷町線「東梅田」徒歩3分
40.0坪 -
第一住建裁判所前ビル
大阪市北区西天満4
谷町線「東梅田」徒歩6分
35.5坪 -
阪神神明ビルディング
大阪市北区西天満4
谷町線「東梅田」徒歩7分
32.71坪





















