中之島インテスビル 8階-No.22668
営業スタッフ紹介
中阪 浩之ナカサカ ヒロユキ
中之島インテスビルの豆知識
「中之島インテスビル」は、大阪市北区中之島6丁目にございます賃貸オフィスビル。
水都大阪シンボルゾーン“中之島”の西に位置します。
交通アクセスとして、JRの「大阪駅」と地下鉄千日前線・中央線の「阿波座駅」へ、15分間隔(夕刻時)で無料のシャトルバスがございます。
ガラスとアルミを美しく調和させたシャープな外観、バルコニーがつくる光と影がリズミカルな表情を鮮やかに映し出し、格調の高さをさりげなく主張したランドマークビル。
エントランスホールは明るく広々としており、ゆとりある車寄せには、タクシーが常時配車されています。
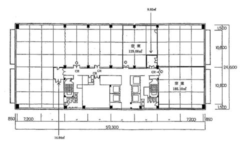
貸室基準階面積は、300坪超。
20坪台の小規模な区画に分割したプランもございます。
貸室内の天井の高さはゆとりの2.6~2.7mにOAフロア。
エレベーターは高層用・低層用各4基+荷物用1基、24時間の有人管理、駐車場に貸し会議室、ビル建物内にコンビニエンスストアと三菱東京UFのATM、220席あるカフェテリアと充実した設備が揃っており、日々のビジネスワークをサポートしています。
中之島インテスビル 基本情報
| 種別 | 貸事務所(物件番号:22668) |
|---|---|
| 物件名 | 中之島インテスビル |
| 住所 | 大阪市北区中之島6-2-40 |
| 所在階 | 8階部分号室 その他、貸室 |
| 契約面積 | 55.99 坪・ 185.10 ㎡ |
| 賃料 | 総額
相談 (税抜)・坪単価
相談 (税抜) 総額 (税含む) |
| 共益費 | 総額 269,312 円 (税抜)・坪単価 4,810 円/坪 (税抜) 総額 296,243 円 (税含む) |
| 月額合計 | 総額 相談(税抜)・坪単価 (税抜) 総額 (税含む) |
| 敷金 | 相談 |
| 解約引 | 全額返金 |
| 最寄駅 |
京阪中之島線 『
中之島 』
3 分
中央線 『 阿波座 』 10 分 東西線 『 新福島 』 10 分 |
| 構造 | 鉄骨鉄筋コンクリート造 22階建 /地下 1 階 |
| 築年数 | 1992/10 【新耐震基準】 |
| 設備
|
|
| エレベーター | 9基 |
営業マンの一言 大型賃貸オフィスビルですが、20坪台の貸室もございます。南北を川にはさまれた中之島西部に位置し、周辺には有名施設が多数御座います。JR「大阪駅」より無料シャトルバス利用可能 |
|
| 備考 | 貸し会議室/リフレッシュルーム |

※取引態様:仲介
※上記、金額は募集条件です。 条件交渉など、詳細についてはお問合せ下さい。
※広告作成中に契約済みの場合はご容赦下さい。
※図面等現況が相違する場合は現況優先にてご容赦下さい。
中之島インテスビルの所在地周辺
ストリートビューを表示▼































