長堀ビル 3階-No.24348
長堀ビル 基本情報
| 種別 | 貸事務所(物件番号:24348) |
|---|---|
| 物件名 | 長堀ビル |
| 住所 | 大阪市中央区南船場1-17-21 |
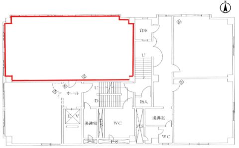
| 所在階 | 3階部分2号室 その他、貸室 |
| 契約面積 | 20.0 坪・ 66.12 ㎡ |
| 賃料 | 総額
相談 (税抜)・坪単価
相談 (税抜) 総額 (税含む) |
| 共益費 | 総額 賃料に含む (税抜)・坪単価 賃料に含む (税抜) 総額 賃料に含む (税含む) |
| 月額合計 | 総額 相談(税抜)・坪単価 (税抜) 総額 (税含む) |
| 敷金 | 6ヶ月 |
| 解約引 | 相談 |
| 費用備考 | 賃貸保証加入要/火災保険加入要 |
| 最寄駅 |
堺筋線 『
長堀橋 』
1 分
長堀鶴見緑地線 『 長堀橋 』 2 分 御堂筋線 『 心斎橋 』 8 分 |
| 構造 | 鉄筋コンクリート造 6階建 |
| 築年数 | 1970/12 |
| 設備
|
|
| エレベーター | 1基 |
営業マンの一言 独立開業向けオフィス大阪メトロ堺筋線 長堀橋駅直ぐの好立地 堺筋に面した角の貸事務所!近隣には銀行なども多く心斎橋駅からも徒歩圏 |
|
| 備考 | 貸し会議室 |

※取引態様:仲介
※上記、金額は募集条件です。 条件交渉など、詳細についてはお問合せ下さい。
※広告作成中に契約済みの場合はご容赦下さい。
※図面等現況が相違する場合は現況優先にてご容赦下さい。
長堀ビルの所在地周辺
長堀ビル その他の部屋情報
| 階 | 号室 | 坪数 | ㎡数 | 賃料 | 共益費 | 敷金 | |
|---|---|---|---|---|---|---|---|
| 2階 | 2 | 20.0坪 | 66.12㎡ | 相談 | 賃料に含む | 6ヶ月 | ![]() |
| 5階 | 1 | 8.0坪 | 26.45㎡ | 相談 | 賃料に含む | 6ヶ月 | ![]() |
| 6階 | 1 | 8.0坪 | 26.45㎡ | 相談 | 賃料に含む | 6ヶ月 | ![]() |
物件を再検索する
長堀ビル 関連物件
長堀ビル 近隣のよく似た坪数の貸事務所
-
オーセンティック東船場Ⅱ
大阪市中央区博労町1
堺筋線「長堀橋」徒歩6分
24.2坪 -
セントラル南船場
大阪市中央区博労町1
堺筋線「長堀橋」徒歩4分
21.4坪 -
森脇ビル
大阪市中央区博労町1
堺筋線「長堀橋」徒歩3分
20.68坪 -
中博ビル(ナカヒロ)
大阪市中央区博労町2
堺筋線「長堀橋」徒歩5分
23.4坪 -
高吉堺筋ビル
大阪市中央区島之内1
堺筋線「長堀橋」徒歩1分
21.59坪 -
ENT長堀ビル
大阪市中央区東心斎橋1
堺筋線「長堀橋」徒歩1分
24.13坪 -
冨士通商ビル
大阪市中央区東心斎橋1
堺筋線「長堀橋」徒歩1分
23.86坪 -
大和ビル8号館
大阪市中央区東心斎橋1
堺筋線「長堀橋」徒歩1分
20.96坪 -
YF心斎橋ビル
大阪市中央区東心斎橋1
堺筋線「長堀橋」徒歩2分
21.19坪 -
長堀安田ビル
大阪市中央区南船場1
堺筋線「長堀橋」徒歩1分
21.36坪







中阪 浩之













