クリエイト上町ビル 9階-No.24367
クリエイト上町ビル 基本情報
| 種別 | 事務所(物件番号:24367) |
|---|---|
| 物件名 | クリエイト上町ビル
短期解約違約?(1年未満総賃料2か?分・2年未満総賃料1ヶ?分 現状での引き渡しとなります。 |
| 住所 | 大阪市中央区上町B-8 |
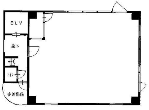
| 所在階 | 9階部分フロア号室 |
| 契約面積 | 14.52 坪・ 48.00 ㎡ |
| 賃料 | 総額
180,000 円 (税抜)・坪単価
12,397 円/坪 (税抜) 総額 198,000 円(税含む) |
| 共益費 | 総額 賃料に含む (税抜)・坪単価 賃料に含む (税抜) 総額 賃料に含む (税含む) |
| 月額合計 | 総額 180,000 円(税抜)・坪単価 12,397 円(税抜) 総額 198,000 円 (税含む) |
| 敷金 | 2ヶ月 |
| 礼金 | 1ヶ月 |
| 費用備考 | 賃貸保証加入要/火災保険加入要 |
| 最寄駅 |
谷町線 『
谷町六丁目 』
5 分
長堀鶴見緑地線 『 谷町六丁目 』 5 分 |
| 構造 | S(鉄骨)造 11階建 |
| 築年数 | 1991/10 【新耐震基準】 |
| 設備
|
|
| エレベーター | 1基 |
営業マンの一言 大阪・谷6エリアのワンフロア賃貸事務所ビル角ビルワンフロアオフィス・三面彩光良好&視認性良好 |
|

※取引態様:仲介
※上記、金額は募集条件です。 条件交渉など、詳細についてはお問合せ下さい。
※広告作成中に契約済みの場合はご容赦下さい。
※図面等現況が相違する場合は現況優先にてご容赦下さい。
クリエイト上町ビルの所在地周辺
ストリートビューを表示▼
物件を再検索する
クリエイト上町ビル 関連物件
クリエイト上町ビル 近隣のよく似た坪数の貸事務所
-
上本町延三ビル
大阪市天王寺区上本町3
谷町線「谷町六丁目」徒歩6分
13.98坪 -
第5松屋ビル
大阪市中央区谷町6
谷町線「谷町六丁目」徒歩1分
12.04坪 -
柴田第一ビル(柴田興産第一ビル)
大阪市中央区上本町西3
谷町線「谷町六丁目」徒歩6分
12.5坪




堀中 忠久





