第三富士ビル 5階-No.2467
中阪 浩之ナカサカ ヒロユキ
第三富士ビルの豆知識
「第三富士ビル」は、大阪市西区立売堀1丁目にございます、賃貸事務所ビル。
四ツ橋筋に面した、落ち着きのある黒い外観の10階建て。
築後30年以上になりますが、リニューアル済み、管理の良い快適なオフィス空間が提供されています。
貸し会議室やミーティングコーナー、リフレッシュコーナー、喫煙室と、ビルスペックも充実。
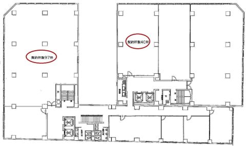
貸室は、広さ約20坪~120坪と豊富な面積がございますので、ご入居予定の人数にあわせて選択が可能です。
地下鉄四つ橋線の「本町駅」21番・22番出口より徒歩3分の交通至便。
大阪のメインストリート“御堂筋”へも徒歩圏内と、フットワークの良いビジネス立地です。
第三富士ビル その他の貸室情報
第三富士ビル 基本情報
| 種別 | 貸事務所(物件番号:2467) |
|---|---|
| 物件名 | 第三富士ビル |
| 住所 | 大阪市西区立売堀1-3-13 |
| 所在階 | 5階部分号室 |
| 契約面積 | 13.0 坪・ 42.98 ㎡ |
| 最寄駅 |
四ツ橋線 『
本町 』
3 分
御堂筋線 『 本町 』 5 分 四ツ橋線 『 四ツ橋 』 8 分 |
| 構造 | 鉄骨鉄筋コンクリート造 10階建 /地下 1 階 |
| 築年数 | 1970/9 (リニューアル: 2003・2004・2005 ) |
| 設備
|
|
| エレベーター | 4基 |
営業マンの一言 大阪・四ツ橋本町駅近くの貸しオフィスです。大阪メトロ四ツ橋線 本町駅徒歩3分 四ツ橋筋に面した賃貸事務所ビル。【定期借家契約、5年になります。】 |
|
| 備考 | 貸し会議室/リフレッシュルーム |

※取引態様:仲介
※上記、金額は募集条件です。 条件交渉など、詳細についてはお問合せ下さい。
※広告作成中に契約済みの場合はご容赦下さい。
※図面等現況が相違する場合は現況優先にてご容赦下さい。
第三富士ビルの所在地周辺
物件を再検索する
第三富士ビル 近隣のよく似た坪数の貸事務所
-
椿堂ビル
大阪市西区阿波座1
四ツ橋線「本町」徒歩1分
15.0坪 -
MKビル
大阪市西区阿波座1
四ツ橋線「本町」徒歩1分
11.54坪 -
有恒ビル
大阪市西区阿波座2
四ツ橋線「本町」徒歩6分
10.98坪 -
本町立売堀ビル
大阪市西区立売堀1
四ツ橋線「本町」徒歩3分
12.62坪 -
プライム本町ビル
大阪市西区靱本町1
四ツ橋線「本町」徒歩2分
12.85坪 -
第二富士ビル
大阪市西区靱本町1
四ツ橋線「本町」徒歩2分
14.0坪 -
大阪華東ビル
大阪市西区靱本町1
四ツ橋線「本町」徒歩2分
10.4坪 -
布亀ビル
大阪市西区靱本町1
四ツ橋線「本町」徒歩2分
13.5坪 -
本町井出ビル
大阪市西区靱本町1
四ツ橋線「本町」徒歩1分
13.42坪 -
本町新興産ビル
大阪市西区西本町1
四ツ橋線「本町」徒歩1分
11.1坪





















