TODA BUILDING心斎橋 7階-No.24707
営業スタッフ紹介
中阪 浩之ナカサカ ヒロユキ
TODA BUILDING心斎橋の豆知識
「りそな船場ビル」は、大阪市中央区南船場4丁目にございます賃貸事務所。
大阪のメインストリート“御堂筋”沿いに建つ、地下2階・地上14階建て、賃貸オフィスビル。
白いタイル貼り外観と管理の良さが、快適なオフィススペースを確保。
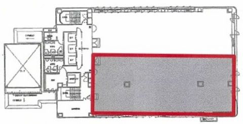
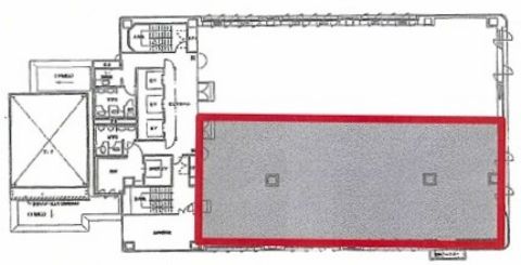
貸室基準階面積は、約170坪。
充実のフルスペックがビジネスワークを強力にサポートしています。
大阪市営地下鉄御堂筋線・長堀鶴見緑地線の「心斎橋駅」3番出入り口より、徒歩1分の交通至便。
大阪ミナミの中心地・心斎橋は、シャネルやルイヴィトンなどの有名ブランドショップが並ぶエリア。
大通りから中に入った周辺も、オシャレなカフェやセレクトショップが多く、洗練された街並みが続いています。
TODA BUILDING心斎橋 基本情報
| 種別 | 貸事務所(物件番号:24707) |
|---|---|
| 物件名 | TODA BUILDING心斎橋
御堂筋に面したハイグレードオフィス。 |
| 住所 | 大阪市中央区南船場4-4-21 |
| 所在階 | 7階部分号室 |
| 契約面積 | 97.47 坪・ 322.22 ㎡ |
| 最寄駅 |
御堂筋線 『
心斎橋 』
1 分
四ツ橋線 『 四ツ橋 』 4 分 |
| 構造 | 鉄骨鉄筋コンクリート造 14階建 /地下 2 階 |
| 築年数 | 1987/1 【新耐震基準】 |
| 設備
|
|
| エレベーター | 4基 13人乗 |
営業マンの一言 御堂筋に面し、駅近、(立地、グレード、設備)充実しています。大阪メトロ御堂筋線 心斎橋駅徒歩1分 四ツ橋線・長堀鶴見緑地線・堺筋線利用可能 心斎橋・南船場の大型賃貸事務所。心斎橋駅徒歩1分 大規模リニューアル済 |
|

※取引態様:仲介
※上記、金額は募集条件です。 条件交渉など、詳細についてはお問合せ下さい。
※広告作成中に契約済みの場合はご容赦下さい。
※図面等現況が相違する場合は現況優先にてご容赦下さい。
TODA BUILDING心斎橋の所在地周辺
ストリートビューを表示▼

























