本町日幸ビル 6階-No.26280
中阪 浩之ナカサカ ヒロユキ
本町日幸ビルの豆知識
「日幸ビル」は、大阪市中央区南本町3丁目にございます、賃貸事務所ビル。
大阪市営地下鉄・御堂筋線の「本町駅」より徒歩2分、中央線の「本町駅」、堺筋線の「堺筋本町駅」からも徒歩3分と、2WAYアクセスが可能です。
大阪市内を東西に走る“中央大通り”に面した、8階建てのコンパクトな建物。
貸室面積も約9坪から20坪弱と、御堂筋・本町では希少なスモールオフィス。
フットワークの良い小規模な賃事務所をお探しの方に最適な物件です。
碁盤の目状に区画されたビジネス街が広がる大阪・船場の本町エリアは、商業・ビジネスの中心地として、多くの企業が集まる地域。
「日幸ビル」の南側には、御堂筋の西から堺筋の東まで“1000mの散歩道・船場センタービル”があります。
高架道路を載せた建物は、1号館から10号館まであり、地上4階地下2階に、商都大阪らしさあふれる、リーズナブルなアパレル・雑貨店から、くいだおれの街にふさわしい、安くて旨い飲食店舗まで、約840店が並んでいます。
本町日幸ビル 基本情報
| 種別 | 貸事務所(物件番号:26280) |
|---|---|
| 物件名 | 本町日幸ビル |
| 住所 | 大阪市中央区南本町3-2-11 |
| 所在階 | 6階部分6B号室 |
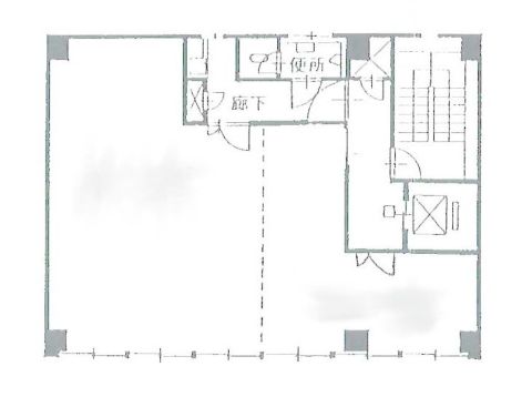
| 契約面積 | 7.26 坪・ 24.00 ㎡ |
| 賃料 | 総額
82,000 円 (税抜)・坪単価
11,295 円/坪 (税抜) 総額 90,200 円(税含む) |
| 共益費 | 総額 2,000 円 (税抜)・坪単価 275 円/坪 (税抜) 総額 2,200 円 (税含む) |
| 月額合計 | 総額 84,000 円(税抜)・坪単価 11,570 円(税抜) 総額 92,400 円 (税含む) |
| 保証金 | 2ヶ月 |
| 解約引 | 1ヶ月 |
| 最寄駅 |
御堂筋線 『
本町 』
2 分
堺筋線 『 堺筋本町 』 3 分 |
| 構造 | 鉄筋コンクリート造 8階建 |
| 築年数 | 1974/6 |
| 設備
|
|
| エレベーター | 1基 |
営業マンの一言 中央大通り面す本町エリア御堂筋線本町駅のコンパクトな貸事務所です。 |
|

※取引態様:仲介
※上記、金額は募集条件です。 条件交渉など、詳細についてはお問合せ下さい。
※広告作成中に契約済みの場合はご容赦下さい。
※図面等現況が相違する場合は現況優先にてご容赦下さい。
本町日幸ビルの所在地周辺
物件を再検索する
本町日幸ビル 近隣のよく似た坪数の貸事務所
-
シルバービル(旧、第一シルバービル)
大阪市中央区安土町3
御堂筋線「本町」徒歩2分
7.5坪 -
七福ビル(淡路町七福ビル)
大阪市中央区淡路町3
御堂筋線「本町」徒歩5分
7.3坪 -
トーア紡第2ビル(トーア紡第二ビル)
大阪市中央区淡路町3
御堂筋線「本町」徒歩5分
9.88坪 -
ドリーム瓦町ビル
大阪市中央区瓦町2
御堂筋線「本町」徒歩5分
9.22坪 -
フカキ瓦町ビル
大阪市中央区瓦町3
御堂筋線「本町」徒歩3分
8.5坪 -
マスザキヤ瓦町ビル
大阪市中央区瓦町4
御堂筋線「本町」徒歩4分
5.99坪 -
RE-017
大阪市中央区北久宝寺町2
御堂筋線「本町」徒歩7分
8.06坪 -
久宝ビル
大阪市中央区北久宝寺町4
御堂筋線「本町」徒歩3分
8.0坪 -
本町アーバンライフ
大阪市中央区北久宝寺町4
御堂筋線「本町」徒歩4分
8.63坪 -
丸忠第1ビル
大阪市中央区久太郎町3
御堂筋線「本町」徒歩1分
8.0坪





















