平松ビル 7階-No.26958
中阪 浩之ナカサカ ヒロユキ
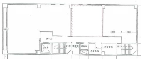
平松ビル 基本情報
| 種別 | 貸事務所(物件番号:26958) |
|---|---|
| 物件名 | 平松ビル |
| 住所 | 大阪市中央区伏見町4-2-6 |
| 所在階 | 7階部分号室 |
| 契約面積 | 13.22 坪・ 43.71 ㎡ |
| 最寄駅 |
御堂筋線 『
淀屋橋 』
1 分
四ツ橋線 『 肥後橋 』 6 分 |
| 構造 | 鉄骨鉄筋コンクリート造 8階建 /地下 1 階 |
| 築年数 | 1975/1 |
| 設備
|
|
| エレベーター | 1基 |
営業マンの一言 希少、淀屋橋駅徒歩1分の好立地淀屋橋WESTエリア、小区画より貸室募集有り、リフレッシュルームも利用可能 |
|
| 備考 | 貸し会議室/リフレッシュルーム |

※取引態様:仲介
※上記、金額は募集条件です。 条件交渉など、詳細についてはお問合せ下さい。
※広告作成中に契約済みの場合はご容赦下さい。
※図面等現況が相違する場合は現況優先にてご容赦下さい。
平松ビルの所在地周辺
物件を再検索する
平松ビル 近隣のよく似た坪数の貸事務所
-
関電不動産梅田新道ビル
大阪市北区堂島1
御堂筋線「淀屋橋」徒歩4分
12.09坪 -
絹笠新興ビル
大阪市北区西天満2
御堂筋線「淀屋橋」徒歩6分
14.74坪 -
堂島ビルヂング
大阪市北区西天満2
御堂筋線「淀屋橋」徒歩5分
14.72坪 -
サンシステム北新地ビル
大阪市北区西天満2
御堂筋線「淀屋橋」徒歩5分
10.66坪 -
大江ビルヂング
大阪市北区西天満2
御堂筋線「淀屋橋」徒歩5分
10.6坪 -
幸田第2ビル
大阪市北区西天満2
御堂筋線「淀屋橋」徒歩5分
14.52坪 -
BB第一ビル
大阪市中央区淡路町4
御堂筋線「淀屋橋」徒歩5分
12.87坪 -
淀屋橋竹村ビル
大阪市中央区今橋4
御堂筋線「淀屋橋」徒歩2分
14.18坪 -
パラード北浜
大阪市中央区北浜2
御堂筋線「淀屋橋」徒歩3分
13.71坪 -
山岡淀屋橋ビル
大阪市中央区北浜3
御堂筋線「淀屋橋」徒歩1分
14.5坪





























