難波室町ビル 1階-No.27144
中阪 浩之ナカサカ ヒロユキ
難波室町ビルの豆知識
難波室町ビルは、大阪メトロ・御堂筋線・四つ橋線、南海電車、近鉄奈良線、阪神なんば線、JR関西本線の「なんば駅」より徒歩5分と理想的なビジネス立地にある賃貸オフィスビルです。国道25号線沿いにあるので視認性にも優れており、阪神高速の湊町出入口・なんば出入口にも近く車での移動も便利です。
エントランスには時間外の来訪者用のインターホンがあり、各室内の給排水設置の相談もできますので、来店型のオフィスや業種によっては店舗使用の相談もできます。
通常オフィスビルの場合、セキュリティ面からエントランスの開放時間を平日は午前7時から午後7時頃に、土・日曜・祝日は閉館としています。もちろん、セキュリティーカード等を持った入居者の方は24時間365日出入り可能です。しかしそうなると、日曜・祝日に来訪者がある企業様(例えば不動産業者や、各種保険会社様、ブライダルサロン様など)のご入居が難しくなります。そのため日曜・祝日もメインエントランスをオープンにしたり、難波室町ビルのようにインターホンを設置して時間外の対応を可能にしたビルも多くはなっております。
難波室町ビル 基本情報
| 種別 | 貸事務所(物件番号:27144) |
|---|---|
| 物件名 | 難波室町ビル |
| 住所 | 大阪市浪速区難波中1-12-5 |
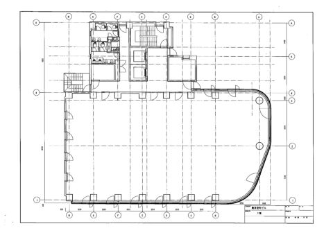
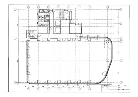
| 所在階 | 1階部分号室 |
| 契約面積 | 32.75 坪・ 108.27 ㎡ |
| 最寄駅 |
御堂筋線 『
なんば 』
4 分
四ツ橋線 『 なんば 』 4 分 千日前線 『 なんば 』 4 分 |
| 構造 | 鉄骨鉄筋コンクリート造 8階建 /地下 1 階 |
| 築年数 | 1989/3 【新耐震基準】 (リニューアル: 平成22年3月WC部分 ) |
| 設備
|
|
| エレベーター | 2基 11人乗 |
営業マンの一言 大阪メトロ御堂筋線 なんば駅徒歩4分 四ツ橋線・千日前線・近鉄線・南海線・JR線利用可能 なんばエリアで大通り沿いの視認性の高い賃貸事務所ビルです |
|

※取引態様:仲介
※上記、金額は募集条件です。 条件交渉など、詳細についてはお問合せ下さい。
※広告作成中に契約済みの場合はご容赦下さい。
※図面等現況が相違する場合は現況優先にてご容赦下さい。
難波室町ビルの所在地周辺
物件を再検索する
難波室町ビル 関連物件
難波室町ビル 近隣のよく似た坪数の貸事務所
-
南海SK難波ビル(旧:南海野村)
大阪市浪速区難波中1
御堂筋線「なんば」徒歩1分
32.08坪 -
なんばパークスタワー
大阪市浪速区難波中2
御堂筋線「なんば」徒歩2分
39.61坪 -
難波中ビル
大阪市浪速区難波中3
御堂筋線「なんば」徒歩8分
40.0坪 -
難波サンケイビル
大阪市浪速区湊町2
御堂筋線「なんば」徒歩4分
32.59坪 -
鎌田ビル
大阪市浪速区元町3
御堂筋線「なんば」徒歩5分
30.8坪 -
グルカスシティ
大阪市中央区心斎橋筋2
御堂筋線「なんば」徒歩2分
38.28坪 -
難波御堂筋センタービル
大阪市中央区難波4
御堂筋線「なんば」徒歩1分
35.38坪 -
大阪戎橋h+ビル
大阪市中央区難波1
御堂筋線「なんば」徒歩1分
30.23坪 -
ティックランドビル(難波)
大阪市中央区難波2
御堂筋線「なんば」徒歩2分
30.25坪 -
三栄御堂筋ビル
大阪市中央区難波3
御堂筋線「なんば」徒歩1分
37.91坪























