明治安田生命大阪御堂筋ビル 4階-No.27184
営業スタッフ紹介
中阪 浩之ナカサカ ヒロユキ
明治安田生命大阪御堂筋ビル その他の貸室情報
| 階 | 号室 | 坪数 | ㎡数 | 賃料 | 共益費 | 敷金 | |
|---|---|---|---|---|---|---|---|
| 7階 | 191.41坪 | 632.76㎡ | お電話・メールにて お問い合わせください。 | ![]() |
|||
| B2階 | 71.92坪 | 237.76㎡ | お電話・メールにて お問い合わせください。 | ![]() |
|||
明治安田生命大阪御堂筋ビル 基本情報
| 種別 | 貸事務所(物件番号:27184) |
|---|---|
| 物件名 | 明治安田生命大阪御堂筋ビル
御堂筋沿いのハイグレード、ハイスペックオフィスビル! |
| 住所 | 大阪市中央区伏見町4-1-1 |
| 所在階 | 4階部分南西号室 |
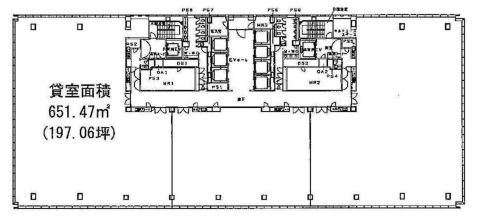
| 契約面積 | 197.06 坪・ 651.44 ㎡ |
| 最寄駅 |
御堂筋線 『
淀屋橋 』
0 分
御堂筋線 『 本町 』 6 分 四ツ橋線 『 肥後橋 』 5 分 |
| 構造 | 鉄骨鉄筋コンクリート造 14階建 /地下 3 階 |
| 築年数 | 2001/8 【新耐震基準】 |
| 設備
|
|
| エレベーター | 10基 |
営業マンの一言 淀屋橋エリアの最高級グレード!久しぶりに空が出ました。大阪メトロ御堂筋線淀屋橋駅徒歩3分 大阪メトロ四つ橋線肥後橋駅徒歩5分 B2階、4階に貸会議室有り・B2階に喫煙スペース有り・「淀屋橋」駅直結・コアタイム空調代込 御堂筋に面した視認性の高い賃貸テナントビル |
|
| 備考 | 駅直結ビル/貸し会議室/リフレッシュルーム |

※取引態様:仲介
※上記、金額は募集条件です。 条件交渉など、詳細についてはお問合せ下さい。
※広告作成中に契約済みの場合はご容赦下さい。
※図面等現況が相違する場合は現況優先にてご容赦下さい。
明治安田生命大阪御堂筋ビルの所在地周辺
ストリートビューを表示▼

























