KCビル 4階-No.27736
中阪 浩之ナカサカ ヒロユキ
KCビルの豆知識
「KCビル」は、大阪市中央区瓦町3丁目にございます賃貸事務所。
ダーク調ガラスウォールと間口の広いビル構えが、落ち着きある地上9階建ての賃貸オフィス。
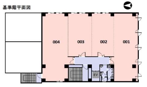
基準階面積は約80坪。
約20坪前後のお部屋分割したフロアもございますので、お問い合わせください。
大阪ビジネス街・淀屋橋・本町エリアに位置する好ロケーションでありながら、コストパフォーマンスの高さが魅力的な賃貸事務所ビル。
大阪メインストリート“御堂筋”に近く、「本町駅」や「淀屋橋駅」へも徒歩3~5分のアクセス。
駐車場・駐輪場もあり、フットワークの良いビジネス拠点です。
KCビル 基本情報
| 種別 | 貸事務所(物件番号:27736) |
|---|---|
| 物件名 | KCビル |
| 住所 | 大阪市中央区瓦町3-4-7 |
| 所在階 | 4階部分4号室 |
| 契約面積 | 21.98 坪・ 72.67 ㎡ |
| 賃料 | 総額
208,810 円 (税抜)・坪単価
9,500 円/坪 (税抜) 総額 229,691 円(税含む) |
| 共益費 | 総額 賃料に含む (税抜)・坪単価 賃料に含む (税抜) 総額 賃料に含む (税含む) |
| 月額合計 | 総額 208,810 円(税抜)・坪単価 9,500 円(税抜) 総額 229,691 円 (税含む) |
| 保証金 | 6ヶ月 |
| 解約引 | 6年未満20%・10年未満10%・10年以上無し(原状回復別途) |
| 最寄駅 |
御堂筋線 『
本町 』
3 分
御堂筋線 『 淀屋橋 』 5 分 京阪本線 『 北浜 』 4 分 |
| 構造 | S(鉄骨)造 9階建 |
| 築年数 | 1984/9 【新耐震基準】 |
| 設備
|
|
| エレベーター | 1基 |
営業マンの一言 淀屋橋・本町駅近オフィスビル大阪ビジネス街のリーズナブル賃貸事務所 |
|

※取引態様:仲介
※上記、金額は募集条件です。 条件交渉など、詳細についてはお問合せ下さい。
※広告作成中に契約済みの場合はご容赦下さい。
※図面等現況が相違する場合は現況優先にてご容赦下さい。
KCビルの所在地周辺
物件を再検索する
KCビル 近隣のよく似た坪数の貸事務所
-
シルバービル(旧、第一シルバービル)
大阪市中央区安土町3
御堂筋線「本町」徒歩2分
20.0坪 -
淡路町ダイビル
大阪市中央区淡路町3
御堂筋線「本町」徒歩5分
22.5坪 -
トーア紡第2ビル(トーア紡第二ビル)
大阪市中央区淡路町3
御堂筋線「本町」徒歩5分
22.67坪 -
ステラ淀屋橋
大阪市中央区淡路町3
御堂筋線「本町」徒歩5分
20.43坪 -
創建御堂筋ビル
大阪市中央区淡路町3
御堂筋線「本町」徒歩3分
21.36坪 -
FPG Links MIDOSUJI
大阪市中央区淡路町4
御堂筋線「本町」徒歩4分
21.92坪 -
CITYPOLEダイコウビル
大阪市中央区淡路町4
御堂筋線「本町」徒歩4分
24.09坪 -
南星本館ビル
大阪市中央区淡路町4
御堂筋線「本町」徒歩4分
20.11坪 -
おおきにKOKODESU瓦町四丁目
大阪市中央区瓦町4
御堂筋線「本町」徒歩4分
24.8坪 -
心斎橋モリセビル
大阪市中央区北久宝寺町3
御堂筋線「本町」徒歩3分
22.88坪
























