マツモト産業ビル 9階-No.27885
マツモト産業ビル 基本情報
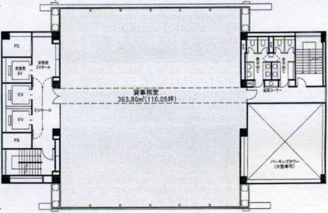
| 種別 | 貸事務所(物件番号:27885) |
|---|---|
| 物件名 | マツモト産業ビル |
| 住所 | 大阪市西区靱本町1-12-6 |
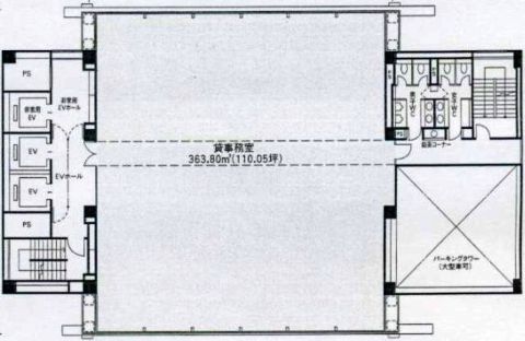
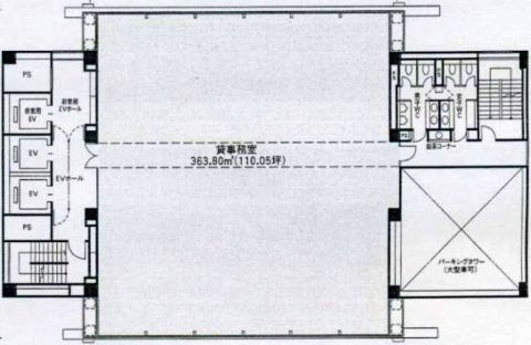
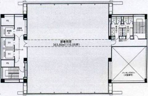
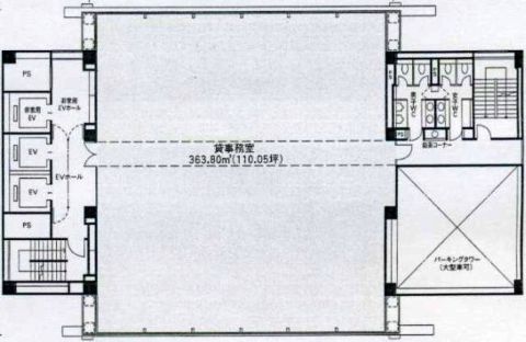
| 所在階 | 9階部分1号室 |
| 契約面積 | 110.05 坪・ 363.81 ㎡ |
| 賃料 | お電話・メールにてお問合下さい。 |
| 共益費 | お電話・メールにてお問合下さい。 |
| 月額合計 | お電話・メールにてお問合下さい。 |
| 保証金 | お電話・メールにてお問合下さい。 |
| 最寄駅 |
四ツ橋線 『
本町 』
1 分
四ツ橋線 『 肥後橋 』 5 分 御堂筋線 『 本町 』 4 分 |
| 構造 | 14階建 /地下 2 階 |
| 築年数 | 1992/7 【新耐震基準】 |
| 設備
|
|
| エレベーター | 3基 |
営業マンの一言 大阪メトロ四ツ橋線 本町駅徒歩1分 肥後橋駅・御堂筋線本町駅徒歩圏内 本町通に面した視認性の高い賃貸テナントビル |
|
| 備考 | 貸し会議室 |

※取引態様:仲介
※上記、金額は募集条件です。 条件交渉など、詳細についてはお問合せ下さい。
※広告作成中に契約済みの場合はご容赦下さい。
※図面等現況が相違する場合は現況優先にてご容赦下さい。
マツモト産業ビルの所在地周辺
ストリートビューを表示▼
物件を再検索する
マツモト産業ビル 関連物件
マツモト産業ビル 近隣のよく似た坪数の貸事務所
-
野村不動産四ツ橋ビル
大阪市西区阿波座1
四ツ橋線「本町」徒歩2分
108.01坪 -
第一協業ビル
大阪市西区阿波座1
四ツ橋線「本町」徒歩5分
120.73坪





中阪 浩之




