ザ・梅田タワー 35階-No.27917
ザ・梅田タワー 基本情報
| 種別 | 貸事務所(物件番号:27917) |
|---|---|
| 物件名 | ザ・梅田タワー |
| 住所 | 大阪市北区鶴野町3-9 |
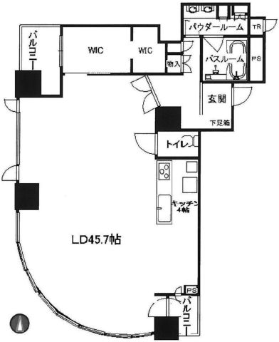
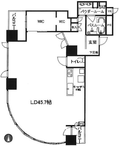
| 所在階 | 35階部分1R号室 |
| 契約面積 | 34.7 坪・ 114.72 ㎡ |
| 最寄駅 |
阪急線 『
梅田 』
4 分
環状線 『 大阪 』 6 分 御堂筋線 『 梅田 』 5 分 |
| 構造 | 鉄骨鉄筋コンクリート造 43階建 |
| 築年数 | 2005/1 【新耐震基準】 |
| 設備
|
|
| エレベーター | 8基 |
営業マンの一言 |
|

※取引態様:仲介
※上記、金額は募集条件です。 条件交渉など、詳細についてはお問合せ下さい。
※広告作成中に契約済みの場合はご容赦下さい。
※図面等現況が相違する場合は現況優先にてご容赦下さい。
ザ・梅田タワーの所在地周辺
ストリートビューを表示▼




中阪 浩之


