シムラビル 5階-No.28348
シムラビル 基本情報
| 種別 | 貸事務所(物件番号:28348) |
|---|---|
| 物件名 | シムラビル |
| 住所 | 大阪市北区中津5-6-7 |
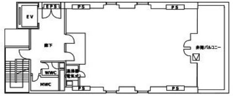
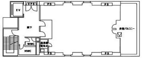
| 所在階 | 5階部分フロア号室 その他、貸室 |
| 契約面積 | 41.5 坪・ 137.19 ㎡ |
| 賃料 | お電話・メールにてお問合下さい。 |
| 共益費 | お電話・メールにてお問合下さい。 |
| 月額合計 | お電話・メールにてお問合下さい。 |
| 保証金 | お電話・メールにてお問合下さい。 |
| 最寄駅 | 御堂筋線 『 中津 』 2 分 |
| 構造 | 鉄骨鉄筋コンクリート造 8階建 |
| 築年数 | 1991/1 【新耐震基準】 |
| 設備
|
|
| エレベーター | 1基 |
営業マンの一言 |
|
| 備考 | 貸し会議室/日祝、来店可能サービス型オフィス |

※取引態様:仲介
※上記、金額は募集条件です。 条件交渉など、詳細についてはお問合せ下さい。
※広告作成中に契約済みの場合はご容赦下さい。
※図面等現況が相違する場合は現況優先にてご容赦下さい。
シムラビルの所在地周辺
ストリートビューを表示▼








堀中 忠久




