難波御堂筋センタービル 8階-No.28415
中阪 浩之ナカサカ ヒロユキ
難波御堂筋センタービルの豆知識
「難波御堂筋センタービル」は名称通り、大阪市中央区難波4丁目、御堂筋に面した賃貸オフィスビル。
地下鉄御堂筋線「なんば駅」の10番出口に直結しており、地下通路を通れば、千日前線・近鉄電車・南海電車へもストレスフリーのアクセスが可能です。
「難波御堂筋センタービル」の魅力は、立地だけではござません。
大阪・ミナミ“なんば”という抜群のロケーションを活かし、土曜日・日曜・祝日もエントランスを開放しておりますので、オフィス使用はもちろん、来店型の業種様にもオススメです。
エレベーターは荷物用も含めて4基、駐車場も併設、駐輪場もございます。
機械警備・個別空調・OAフロア・男女別のシャワートイレと快適なオフィススペースでビジネス効率も増します。
1階に“洋服の青山”さん、上層階には献血ルームもあります。
最近の献血ルームは、ゆったりしたスペースで、癒しの空間としても、とても充実しています。
是非、定期的に献血にご協力くださいませ。
難波御堂筋センタービル その他の貸室情報
難波御堂筋センタービル 基本情報
| 種別 | 事務所・店舗(物件番号:28415) |
|---|---|
| 物件名 | 難波御堂筋センタービル |
| 住所 | 大阪市中央区難波4-4-4 |
| 所在階 | 8階部分号室 |
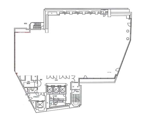
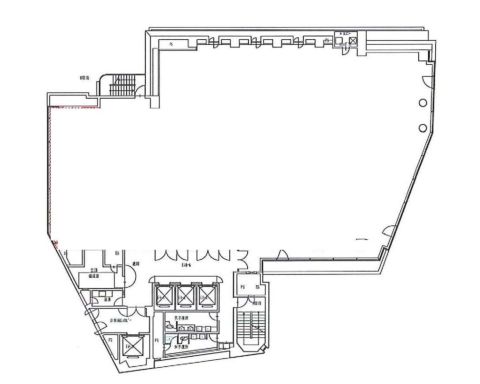
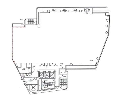
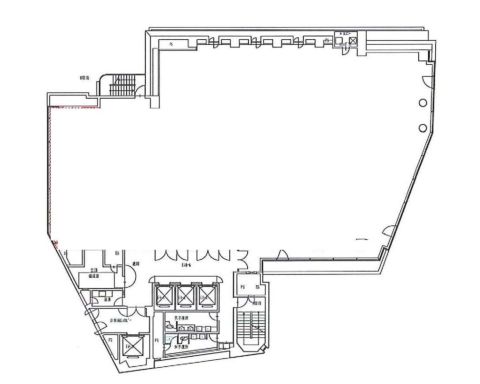
| 契約面積 | 121.6 坪・ 401.99 ㎡ |
| 最寄駅 |
御堂筋線 『
なんば 』
1 分
四ツ橋線 『 なんば 』 5 分 南海線 『 難波 』 3 分 |
| 構造 | 鉄骨鉄筋コンクリート造 10階建 /地下 3 階 |
| 築年数 | 1992/4 【新耐震基準】 |
| 設備
|
|
| エレベーター | 4基 |
営業マンの一言 大阪・難波駅1分の賃貸事務所ビル、日祝もエントランスオープン大阪メトロ御堂筋線 「なんば駅」直結、JR線・近鉄線・南海線利用可能 大通りに面し、視認性も良く来客型オフィスに最適です |
|
| 備考 | 駅直結ビル/日祝、来店可能サービス型オフィス |

※取引態様:仲介
※上記、金額は募集条件です。 条件交渉など、詳細についてはお問合せ下さい。
※広告作成中に契約済みの場合はご容赦下さい。
※図面等現況が相違する場合は現況優先にてご容赦下さい。
難波御堂筋センタービルの所在地周辺
物件を再検索する
難波御堂筋センタービル 関連物件
難波御堂筋センタービル 近隣のよく似た坪数の貸事務所
-
マルイト難波ビル
大阪市浪速区湊町1
御堂筋線「なんば」徒歩1分
112.32坪 -
EBISUBASHI.ENTビル
大阪市中央区難波3
御堂筋線「なんば」徒歩1分
137.72坪
























