東天神ビル 3階-No.2903
堀中 忠久ホリナカ タダヒサ
東天神ビルの豆知識
「東天神ビル」は、大阪市北区東天満1丁目にございます賃貸事務所。
曽根崎通り(国道1号線)の東天満1交差点を南に入ってスグの北西角ビル。
エレベーターはありませんが、駅近で採光が良く、しかもローコストな賃貸オフィスです。
JR東西線の「大阪天満宮」駅から徒歩1分。
大阪市営地下鉄堺筋線・谷町線の「南森町駅」より徒歩3分の交通至便。
大阪天満宮や天神橋筋商店街が近く、ロケーションの良さが魅力の大阪ビジネス拠点です。
大阪・南森町は、人気の梅田まで地下鉄ひと駅というアクセスの良さの割に、賃貸条件の良い事務所・オフィスビルが多く集まるエリアです。
東天神ビル 基本情報
| 種別 | 事務所(物件番号:2903) |
|---|---|
| 物件名 | 東天神ビル |
| 住所 | 大阪市北区東天満1-11-1 |
| 所在階 | 3階部分号室 |
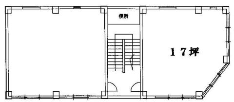
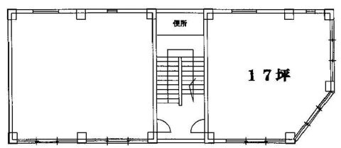
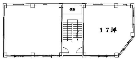
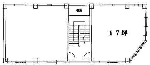
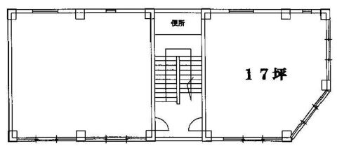
| 契約面積 | 17.0 坪・ 56.20 ㎡ |
| 賃料 | お電話・メールにてお問合下さい。 |
| 共益費 | お電話・メールにてお問合下さい。 |
| 月額合計 | お電話・メールにてお問合下さい。 |
| 敷金 | お電話・メールにてお問合下さい。 |
| 費用備考 | 賃貸保証加入要 |
| 最寄駅 |
東西線 『
大阪天満宮 』
1 分
堺筋線 『 南森町 』 3 分 谷町線 『 南森町 』 3 分 |
| 構造 | 鉄筋コンクリート造 5階建 |
| 築年数 | / |
| 設備
|
|
営業マンの一言 大阪天満宮近くのローコストな貸事務所ビル |
|

※取引態様:仲介
※上記、金額は募集条件です。 条件交渉など、詳細についてはお問合せ下さい。
※広告作成中に契約済みの場合はご容赦下さい。
※図面等現況が相違する場合は現況優先にてご容赦下さい。
東天神ビルの所在地周辺
物件を再検索する
東天神ビル 近隣のよく似た坪数の貸事務所
-
日成建設ビル
大阪市北区天満1
東西線「大阪天満宮」徒歩7分
19.0坪 -
中央ハウジング空心町ビルディング
大阪市北区天満橋1
東西線「大阪天満宮」徒歩4分
16.12坪 -
OAPレジデンスタワー西館
大阪市北区天満橋1
東西線「大阪天満宮」徒歩9分
18.18坪 -
エル・ミズホビル
大阪市北区西天満6
東西線「大阪天満宮」徒歩8分
18.07坪 -
東天満ビル
大阪市北区東天満1
東西線「大阪天満宮」徒歩3分
18.47坪 -
MF南森町2ビル
大阪市北区東天満1
東西線「大阪天満宮」徒歩1分
18.12坪 -
日光ビル
大阪市北区東天満2
東西線「大阪天満宮」徒歩3分
15.5坪 -
東天満パークビル
大阪市北区東天満2
東西線「大阪天満宮」徒歩2分
17.68坪 -
千代田ビル東館
大阪市北区東天満2
東西線「大阪天満宮」徒歩1分
15.73坪 -
第9田淵ビル
大阪市北区東天満2
東西線「大阪天満宮」徒歩1分
16.79坪


















