M.BALANCE YODOYABASHI 4階-No.29351
丹羽 美智子ニワミチコ
M.BALANCE YODOYABASHIの豆知識
「平野町ビル」は、その名称通り、大阪市中央区平野町4丁目にございます賃貸事務所ビル。
御堂筋と四ツ橋筋の中間点に位置しておりますので、交通アクセスも地下鉄御堂筋線の「淀屋橋駅」・四つ橋線の「肥後橋駅」それぞれより徒歩5分の立地。“大阪ガスビル”さんの西側です。
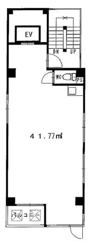
大規模な建物が多く並ぶ淀屋橋エリアにあって、「平野町ビル」は、約40㎡・12坪ほどの希少なワンフロア・ワンテナント仕様のオフィス。
賃貸条件も見直しがございましたので、“淀屋橋エリア”で、小規模のオフィスをお探しの方には、おすすめです。
ワンフロア使用のメリットは、トイレ・給湯など水廻りを専用できること。
つまり、他の入居者様に気を遣うことがございません。
反対にデメリットは、本来共用部にあるトイレなどの面積も専有部に含みますので、実質のワークスペースが狭くなること。
いずれにしても、一長一短がございますので、お使いになられる目的を明確に、事務所選びをしていただくことをおすすめしております。
M.BALANCE YODOYABASHI 基本情報
| 種別 | 事務所・店舗(物件番号:29351) |
|---|---|
| 物件名 | M.BALANCE YODOYABASHI
セットアップオフィスです!商談コーナー・約6名様用です。 |
| 住所 | 大阪市中央区平野町4-5-7 |
| 所在階 | 4階部分フロア号室 その他、貸室 |
| 契約面積 | 12.63 坪・ 41.76 ㎡ |
| 賃料 | 総額
300,000 円 (税抜)・坪単価
23,753 円/坪 (税抜) 総額 330,000 円(税含む) |
| 共益費 | 総額 賃料に含む (税抜)・坪単価 賃料に含む (税抜) 総額 賃料に含む (税含む) |
| 月額合計 | 総額 300,000 円(税抜)・坪単価 23,753 円(税抜) 総額 330,000 円 (税含む) |
| 保証金 | 200,000 円 |
| 礼金 | 110,000円(税含む) |
| 費用備考 | 賃貸保証加入要/その他諸費用あり |
| 最寄駅 |
御堂筋線 『
淀屋橋 』
5 分
四ツ橋線 『 肥後橋 』 5 分 |
| 構造 | S(鉄骨)造 8階建 |
| 築年数 | 2001/11 【新耐震基準】 |
| 設備
|
|
| エレベーター | 1基 |
営業マンの一言 |
|
| 備考 | オートロック |

※取引態様:仲介
※上記、金額は募集条件です。 条件交渉など、詳細についてはお問合せ下さい。
※広告作成中に契約済みの場合はご容赦下さい。
※図面等現況が相違する場合は現況優先にてご容赦下さい。
M.BALANCE YODOYABASHIの所在地周辺
M.BALANCE YODOYABASHI その他の部屋情報
| 階 | 号室 | 坪数 | ㎡数 | 賃料 | 共益費 | 保証金 | |
|---|---|---|---|---|---|---|---|
| 3階 | フロア | 12.63坪 | 41.76㎡ | 300,000 円 | 賃料に含む | 200,000 円 | ![]() |
| 5階 | フロア | 12.63坪 | 41.76㎡ | 300,000 円 | 賃料に含む | 200,000 円 | ![]() |
物件を再検索する
M.BALANCE YODOYABASHI 関連物件
M.BALANCE YODOYABASHI 近隣のよく似た坪数の貸事務所
-
関電不動産梅田新道ビル
大阪市北区堂島1
御堂筋線「淀屋橋」徒歩4分
12.09坪 -
絹笠新興ビル
大阪市北区西天満2
御堂筋線「淀屋橋」徒歩6分
14.74坪 -
堂島ビルヂング
大阪市北区西天満2
御堂筋線「淀屋橋」徒歩5分
14.72坪 -
サンシステム北新地ビル
大阪市北区西天満2
御堂筋線「淀屋橋」徒歩5分
10.66坪 -
大江ビルヂング
大阪市北区西天満2
御堂筋線「淀屋橋」徒歩5分
10.6坪 -
幸田第2ビル
大阪市北区西天満2
御堂筋線「淀屋橋」徒歩5分
14.52坪 -
BB第一ビル
大阪市中央区淡路町4
御堂筋線「淀屋橋」徒歩5分
12.87坪 -
淀屋橋竹村ビル
大阪市中央区今橋4
御堂筋線「淀屋橋」徒歩2分
14.18坪 -
パラード北浜
大阪市中央区北浜2
御堂筋線「淀屋橋」徒歩3分
13.71坪 -
山岡淀屋橋ビル
大阪市中央区北浜3
御堂筋線「淀屋橋」徒歩1分
14.5坪




























