北浜永和ビル 3階-No.299
中阪 浩之ナカサカ ヒロユキ
北浜永和ビルの豆知識
「北浜永和ビル」は、大阪市中央区北浜3丁目にございます賃貸オフィスビル。
地下鉄御堂筋線の「淀屋橋駅」より徒歩2分、堺筋線の「北浜駅」より徒歩3分、京阪本線の「淀屋橋駅」からは徒歩1分の好立地!さらに、いずれの“駅”からも、地下の連絡通路にて直結していますので、雨の日も傘が要りません。
また、1階にコンビニエンスストアがあるガラス貼りの外観は非常に視認性が高く、交通アクセスの良さとあわせて、来客の多い企業様に最適です。
エレベーター2基・個別空調、機械警備、駐車場、駐輪場と設備も充実した快適なオフィス空間。
貸室は、10坪以下の小さな面積からもございます。淀屋橋エリアで小規模オフィスをお探しの際は、是非ご相談ください。
「北浜永和ビル」のロケーションの良さは、交通アクセスだけではございません。
建物の南側には、“史跡 緒方洪庵適塾”と緑化協力庭園があり、都会の喧騒を忘れさせてくれる空間です。
大阪ビジネス街のど真ん中、まさに“都会のオアシス”です。
北浜永和ビル 基本情報
| 種別 | 貸事務所(物件番号:299) |
|---|---|
| 物件名 | 北浜永和ビル |
| 住所 | 大阪市中央区北浜3-2-12 |
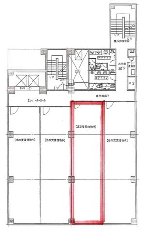
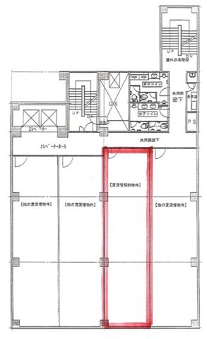
| 所在階 | 3階部分号室 |
| 契約面積 | 22.89 坪・ 75.67 ㎡ |
| 最寄駅 |
御堂筋線 『
淀屋橋 』
2 分
堺筋線 『 北浜 』 3 分 京阪本線 『 淀屋橋 』 3 分 |
| 構造 | 鉄骨鉄筋コンクリート造 7階建 /地下 2 階 |
| 築年数 | 1964/1 (リニューアル: 2003年 ) |
| 設備
|
|
| エレベーター | 2基 |
営業マンの一言 空調設備リニューアル完了!淀屋橋駅・北浜駅の地下連絡通路に直結で雨の日でも傘いらずの貸事務所です。 |
|

※取引態様:仲介
※上記、金額は募集条件です。 条件交渉など、詳細についてはお問合せ下さい。
※広告作成中に契約済みの場合はご容赦下さい。
※図面等現況が相違する場合は現況優先にてご容赦下さい。
北浜永和ビルの所在地周辺
入居テナント
物件を再検索する
北浜永和ビル 近隣のよく似た坪数の貸事務所
-
角屋堂島パークビル
大阪市北区堂島浜1
御堂筋線「淀屋橋」徒歩5分
21.92坪 -
堂浜第Ⅱビル【堂島第2ビル】
大阪市北区堂島浜1
御堂筋線「淀屋橋」徒歩7分
23.9坪 -
堂島ビルヂング
大阪市北区西天満2
御堂筋線「淀屋橋」徒歩5分
23.04坪 -
klimt BLD
大阪市北区西天満2
御堂筋線「淀屋橋」徒歩5分
20.78坪 -
北ビル3号館
大阪市北区西天満2
御堂筋線「淀屋橋」徒歩7分
24.2坪 -
Y’s淡路町ビル
大阪市中央区淡路町2
御堂筋線「淀屋橋」徒歩6分
20.01坪 -
大橋北浜ビル
大阪市中央区北浜1
御堂筋線「淀屋橋」徒歩8分
22.41坪 -
高麗橋ビル(高麗橋4丁目)
大阪市中央区高麗橋4
御堂筋線「淀屋橋」徒歩2分
22.43坪 -
淀屋橋ダイビル
大阪市中央区高麗橋4
御堂筋線「淀屋橋」徒歩2分
22.9坪 -
パークコート淀屋橋ビル
大阪市中央区高麗橋4
御堂筋線「淀屋橋」徒歩4分
21.47坪























