BRAVE難波(ブレイブ難波) 8階-No.30004
BRAVE難波(ブレイブ難波) 基本情報
| 種別 | 事務所・店舗(物件番号:30004) |
|---|---|
| 物件名 | BRAVE難波(ブレイブ難波)
脱毛サロン跡・居抜きもご相談可です。 |
| 住所 | 大阪市中央区難波千日前15-15 |
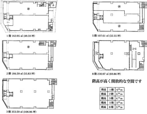
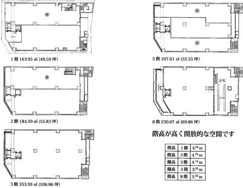
| 所在階 | 8階部分号室 |
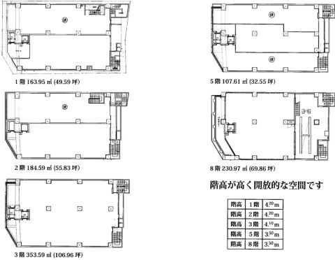
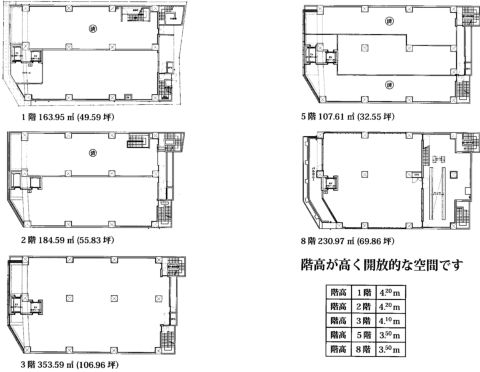
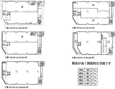
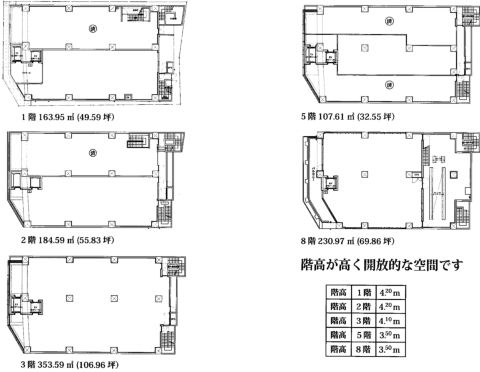
| 契約面積 | 69.86 坪・ 230.95 ㎡ |
| 賃料 | 総額
2,445,100 円 (税抜)・坪単価
35,000 円/坪 (税抜) 総額 2,689,610 円(税含む) |
| 共益費 | 総額 賃料に含む (税抜)・坪単価 賃料に含む (税抜) 総額 賃料に含む (税含む) |
| 月額合計 | 総額 2,445,100 円(税抜)・坪単価 35,000 円(税抜) 総額 2,689,610 円 (税含む) |
| 保証金 | 相談 |
| 礼金 | 1ヶ月 |
| 最寄駅 |
御堂筋線 『
なんば 』
4 分
南海線 『 難波 』 1 分 千日前線 『 なんば 』 5 分 |
| 構造 | 鉄筋コンクリート造 8階建 /地下 1 階 |
| 築年数 | 2020/4 【新耐震基準】 |
| 設備
|
|
| エレベーター | 2基 |
営業マンの一言 大阪メトロ御堂筋線 なんば駅徒歩4分 南海線 なんば駅徒歩1分 近鉄線利用可能■エステ・美容室・クリニック向き■飲食店舗向き■物販向き |
|

※取引態様:仲介
※上記、金額は募集条件です。 条件交渉など、詳細についてはお問合せ下さい。
※広告作成中に契約済みの場合はご容赦下さい。
※図面等現況が相違する場合は現況優先にてご容赦下さい。
BRAVE難波(ブレイブ難波)の所在地周辺
ストリートビューを表示▼
物件を再検索する
BRAVE難波(ブレイブ難波) 関連物件
BRAVE難波(ブレイブ難波) 近隣のよく似た坪数の貸事務所
-
なんばパークスタワー
大阪市浪速区難波中2
御堂筋線「なんば」徒歩2分
61.06坪 -
千日前M’s ビル
大阪市中央区千日前1
御堂筋線「なんば」徒歩7分
61.28坪 -
道頓堀リッツビル
大阪市中央区道頓堀2
御堂筋線「なんば」徒歩3分
64.13坪




堀中 忠久





