南扇町オーパスビル 3階-No.30915
営業スタッフ紹介
中阪 浩之ナカサカ ヒロユキ
南扇町オーパスビルの豆知識
「南扇町オーパスビル」は、大阪市北区南扇町にございます、貸事務所ビル。
大阪市営地下鉄・堺筋線・谷町線の「南森町駅」より徒歩5分。
梅田エリアも徒歩圏内と、フットワークの良い立地です。
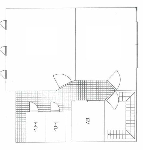
基準階面積が約20坪の小規模な建物。
分割して約10坪という、使いやすい広さの貸室もございますので、個人事務様など少人数でお使いの企業様には最適です。
2008年5月にリニューアル工事も完了しており、快適なオフィス空間。
梅田エリアを希望しているが、コンパクトなオフィスが少ない地域で、なかなか思う物件に出会えない方、「南扇町オーパスビル」は必見です。
“扇町公園”“野崎公園”“堀川戎神社”など、緑も多く静かで落ち着いた、ビジネス環境。
少し東へ行けば、“天神橋筋商店街”があり、日常のサポートも万全。
“天神橋筋商店街”は、日本一長いことで有名な商店街。
南北約2.6㎞に約600もの店舗が、軒を並べています。商都大阪らしさ満載で、パワーあふれる街並みです。
南扇町オーパスビル その他の貸室情報
南扇町オーパスビル 基本情報
| 種別 | 貸事務所(物件番号:30915) |
|---|---|
| 物件名 | 南扇町オーパスビル |
| 住所 | 大阪市北区南扇町2-1 |
| 所在階 | 3階部分号室 |
| 契約面積 | 10.89 坪・ 36.00 ㎡ |
| 最寄駅 |
谷町線 『
南森町 』
5 分
堺筋線 『 南森町 』 5 分 谷町線 『 東梅田 』 8 分 |
| 構造 | 鉄骨ALC造 9階建 |
| 築年数 | / (リニューアル: 2008/05 ) |
| 設備
|
|
| エレベーター | 1基 |
営業マンの一言 梅田徒歩圏内の静かな賃貸オフィスです。 |
|

※取引態様:仲介
※上記、金額は募集条件です。 条件交渉など、詳細についてはお問合せ下さい。
※広告作成中に契約済みの場合はご容赦下さい。
※図面等現況が相違する場合は現況優先にてご容赦下さい。
南扇町オーパスビルの所在地周辺
ストリートビューを表示▼













