四ツ橋ビルディング 3階-No.31923
営業スタッフ紹介
中阪 浩之ナカサカ ヒロユキ
四ツ橋ビルディング その他の貸室情報
四ツ橋ビルディング 基本情報
| 種別 | 事務所(物件番号:31923) |
|---|---|
| 物件名 | 四ツ橋ビルディング |
| 住所 | 大阪市西区新町1-5-7 |
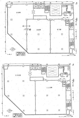
| 所在階 | 3階部分号室 |
| 契約面積 | 51.0 坪・ 168.60 ㎡ |
| 最寄駅 |
四ツ橋線 『
四ツ橋 』
直結 分
御堂筋線 『 心斎橋 』 5 分 長堀鶴見緑地線 『 西大橋 』 5 分 |
| 構造 | 鉄骨鉄筋コンクリート造 9階建 /地下 2 階 |
| 築年数 | 1965/9 (リニューアル: 耐震済 ) |
| 設備
|
|
| エレベーター | 3基 |
営業マンの一言 平成3年内外装リニュアル済大阪メトロ四ツ橋線 「四ツ橋」駅直結、大規模リニューアル 視認性抜群、新築並みのグレード&クオリティを堪能下さい。 |
|
| 備考 | 免震・耐震補強/駅直結ビル/リフレッシュルーム |

※取引態様:仲介
※上記、金額は募集条件です。 条件交渉など、詳細についてはお問合せ下さい。
※広告作成中に契約済みの場合はご容赦下さい。
※図面等現況が相違する場合は現況優先にてご容赦下さい。
四ツ橋ビルディングの所在地周辺
ストリートビューを表示▼





















