京橋 貸店舗 3階-No.31970
京橋 貸店舗 基本情報
| 種別 | 貸店舗(物件番号:31970) |
|---|---|
| 物件名 | 京橋 貸店舗 |
| 住所 | 大阪市都島区東野田町2 |
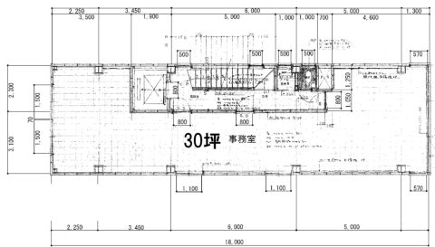
| 所在階 | 3階部分号室 |
| 契約面積 | 30.0 坪・ 99.18 ㎡ |
| 最寄駅 |
東西線 『
京橋 』
2 分
京阪本線 『 京橋 』 1 分 長堀鶴見緑地線 『 京橋 』 3 分 |
| 構造 | |
| 築年数 | / |
| 設備
|
|
| エレベーター | 1基 |
営業マンの一言 |
|

※取引態様:仲介
※上記、金額は募集条件です。 条件交渉など、詳細についてはお問合せ下さい。
※広告作成中に契約済みの場合はご容赦下さい。
※図面等現況が相違する場合は現況優先にてご容赦下さい。
京橋 貸店舗の所在地周辺
ストリートビューを表示▼





中阪 浩之


