センバ・セントラルビル 9階-No.33173
営業スタッフ紹介
中阪 浩之ナカサカ ヒロユキ
センバ・セントラルビルの豆知識
「センバ・セントラルビル」は、大阪市中央区本町2丁目にございます、賃貸事務所ビルです。
大阪を南北に貫く御堂筋と堺筋の間、東西にはしる本町通りに面した、まさに商都大阪・船場のど真ん中に位置する好ロケーションオフィス。
ゆえに、交通アクセスも、大阪市メトロ・御堂筋線・中央線の「本町駅」、堺筋線・中央線の「堺筋本町駅」と、3WAYの利用が可能な抜群のフットワーク。
基準階面積が約300坪の9階建ての大型ビル。
築40年以上になりますが、2015年3月には耐震工事も完了。
エレベーター3基、個別空調・OAフロア、有人警備のセキュリティ、駐車場併設と充実のビルスペック。
無料の会議室も有り、快適なビジネスワークが確保されています。
貸室は、ゆとりのワンフロア300坪から、分割した部屋も有り、バリエーションが豊富。
本町・堺筋本町界隈は、大阪国際ビル等多くの企業の本社・支社が集まる大阪ビジネスの中心地です。
センバ・セントラルビル その他の貸室情報
センバ・セントラルビル 基本情報
| 種別 | 貸事務所(物件番号:33173) |
|---|---|
| 物件名 | センバ・セントラルビル |
| 住所 | 大阪市中央区本町2-6-8 |
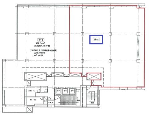
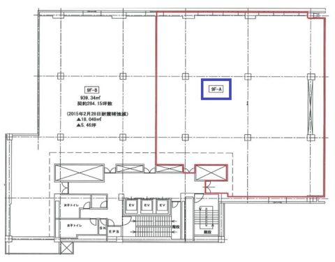
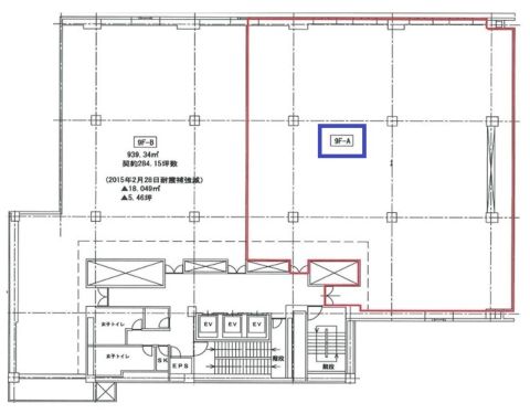
| 所在階 | 9階部分A号室 |
| 契約面積 | 154.66 坪・ 511.28 ㎡ |
| 最寄駅 |
堺筋線 『
堺筋本町 』
2 分
御堂筋線 『 本町 』 3 分 中央線 『 堺筋本町 』 2 分 |
| 構造 | 鉄骨鉄筋コンクリート造 9階建 /地下 2 階 |
| 築年数 | 1969/9 (リニューアル: 耐震済 ) |
| 設備
|
|
| エレベーター | 3基 |
営業マンの一言 大阪・本町通りに面した大型賃貸事務所ビル。2015年3月に第2期耐震工事完了!安心の賃貸オフィス。貸会議室は無料 |
|
| 備考 | 免震・耐震補強/貸し会議室/リフレッシュルーム |

※取引態様:仲介
※上記、金額は募集条件です。 条件交渉など、詳細についてはお問合せ下さい。
※広告作成中に契約済みの場合はご容赦下さい。
※図面等現況が相違する場合は現況優先にてご容赦下さい。
センバ・セントラルビルの所在地周辺
ストリートビューを表示▼














