なんば 事務所 9階-No.33704
中阪 浩之ナカサカ ヒロユキ
当該ビルの豆知識
「ミフネ難波ビル」は、大阪市中央区難波1丁目にございます、賃貸テナントビル。
千日前通りに面し、地下は“なんばウォーク”に直結。
多彩な商業施設の集積地・大阪ミナミの中心に位置した、抜群のロケーション。
“戎橋筋商店街”に隣接しており、人通り&視認性も高い好立地です。
大阪市営地下鉄・御堂筋線・千日前線の「なんば駅」より徒歩1分、南海電鉄の「難波駅」へも徒歩5分の交通アクセス。
地下・下層階は、店舗に最適。
上層階も、オフィスはもちろん来店型テナントとして、おすすめです。
食とファッションと文化の中心地・大阪ミナミ・なんばエリア。
隣接する“戎橋筋商店街”は、北はグリコの看板で有名な戎橋から、南は大阪高島屋までの商店街。昼夜問わず、平日・日・祝日を問わず、多くの人で賑わう屈指の商店街。
近年は、外国人観光客も増え、さらにヒートアップした状態です。
最新トレンドショップはもちろんのこと、大阪らしい・おいしい店・おもろい店が集約。
ひやかしに、見ているだけも楽しく・パワーを感じるスポット。
それだけに、人ごみに“酔う”方は、ご注意くださいませ!!!
なんば 事務所 基本情報
| 種別 | 事務所(物件番号:33704) |
|---|---|
| 物件名 | なんば 事務所 |
| 住所 | 大阪市中央区難波1 |
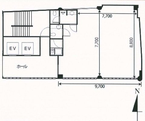
| 所在階 | 9階部分2号室 |
| 契約面積 | 30.11 坪・ 99.54 ㎡ |
| 最寄駅 |
御堂筋線 『
なんば 』
1 分
四ツ橋線 『 なんば 』 3 分 堺筋線 『 日本橋 』 5 分 |
| 構造 | 鉄骨鉄筋コンクリート造 9階建 /地下 2 階 |
| 築年数 | 1970/1 |
| 設備
|
|
| エレベーター | 2基 |
営業マンの一言 御堂筋線 なんば駅徒歩1分 近鉄線・南海線・JR線・各地下鉄線利用可能 ナンバウォーク直結の店舗&事務所。千日前通り面す!人通り&視認性抜群のビル■エステ・美容室・クリニック向き■物販向き■各種教室向き |
|

※取引態様:仲介
※上記、金額は募集条件です。 条件交渉など、詳細についてはお問合せ下さい。
※広告作成中に契約済みの場合はご容赦下さい。
※図面等現況が相違する場合は現況優先にてご容赦下さい。
なんば 事務所の所在地周辺
物件を再検索する
なんば 事務所 関連物件
なんば 事務所 近隣のよく似た坪数の貸事務所
-
南海SK難波ビル(旧:南海野村)
大阪市浪速区難波中1
御堂筋線「なんば」徒歩1分
32.08坪 -
なんばパークスタワー
大阪市浪速区難波中2
御堂筋線「なんば」徒歩2分
39.61坪 -
難波中ビル
大阪市浪速区難波中3
御堂筋線「なんば」徒歩8分
40.0坪 -
難波サンケイビル
大阪市浪速区湊町2
御堂筋線「なんば」徒歩4分
32.59坪 -
鎌田ビル
大阪市浪速区元町3
御堂筋線「なんば」徒歩5分
30.8坪 -
グルカスシティ
大阪市中央区心斎橋筋2
御堂筋線「なんば」徒歩2分
38.28坪 -
難波御堂筋センタービル
大阪市中央区難波4
御堂筋線「なんば」徒歩1分
35.38坪 -
大阪戎橋h+ビル
大阪市中央区難波1
御堂筋線「なんば」徒歩1分
30.23坪 -
ティックランドビル(難波)
大阪市中央区難波2
御堂筋線「なんば」徒歩2分
30.25坪 -
三栄御堂筋ビル
大阪市中央区難波3
御堂筋線「なんば」徒歩1分
37.91坪




















