サンビル京橋 3階-No.34437
営業スタッフ紹介
中阪 浩之ナカサカ ヒロユキ
サンビル京橋の豆知識
「サンビル京橋」は、大阪市都島区東野田町4丁目にございます、賃貸事務所・テナントビル。
国道1号線沿いに建つ、落ち着きある外観の8階建て。
築後30年以上経ちますが、2008年にはリニューアル及び耐震改修工事が完了し、安心・快適なオフィスビルへと、生まれ変わっております。
エレベーター2基、個別空調、機械警備、男女別シャワートイレ、駐車場と、ビルスペックも充実。
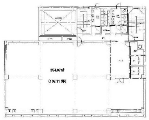
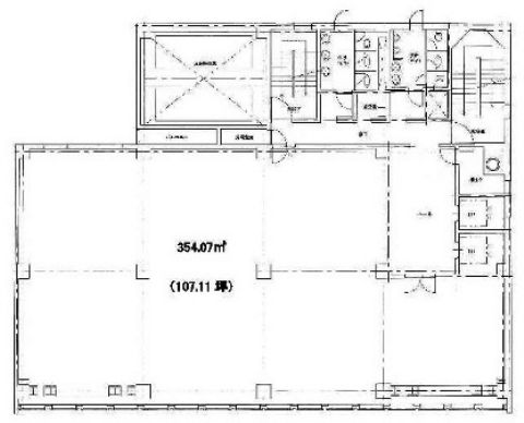
基準階面積は、100坪強。
約15坪~30坪に分割しているフロアもございますので、お問合せください。
大阪市営地下鉄・長堀鶴見緑地線の「京橋駅」より徒歩2分。
京阪本線・JR環状線の「京橋駅」からも徒歩4分と、3WAYアクセスが可能な好立地オフィス。
京橋界隈は、便利な土地柄から店舗・テナント使用の需要が多く、オフィスビルの供給数が少ないエリアです。
サンビル京橋 その他の貸室情報
サンビル京橋 基本情報
| 種別 | 貸事務所(物件番号:34437) |
|---|---|
| 物件名 | サンビル京橋 |
| 住所 | 大阪市都島区東野田町4-7-23 |
| 所在階 | 3階部分号室 |
| 契約面積 | 107.71 坪・ 356.07 ㎡ |
| 最寄駅 |
長堀鶴見緑地線 『
京橋 』
2 分
環状線 『 京橋 』 4 分 京阪本線 『 京橋 』 4 分 |
| 構造 | 鉄骨鉄筋コンクリート造 8階建 /地下 1 階 |
| 築年数 | 1972/10 (リニューアル: 2008/07 ) |
| 設備
|
|
| エレベーター | 2基 |
営業マンの一言 JR・京阪・地下鉄の「京橋駅」が利用可能です。国道1号線に面した好立地・大阪賃貸オフィス。JR・地下鉄 京橋駅徒歩スグ。駐車場完備 |
|

※取引態様:仲介
※上記、金額は募集条件です。 条件交渉など、詳細についてはお問合せ下さい。
※広告作成中に契約済みの場合はご容赦下さい。
※図面等現況が相違する場合は現況優先にてご容赦下さい。
サンビル京橋の所在地周辺
ストリートビューを表示▼



















