KTビル 2階-No.35584
営業スタッフ紹介
中阪 浩之ナカサカ ヒロユキ
KTビル 基本情報
| 種別 | 事務所・店舗(物件番号:35584) |
|---|---|
| 物件名 | KTビル |
| 住所 | 大阪市中央区平野町2-5-4 |
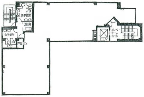
| 所在階 | 2階部分フロア号室 |
| 契約面積 | 64.5 坪・ 213.23 ㎡ |
| 最寄駅 |
御堂筋線 『
淀屋橋 』
6 分
堺筋線 『 北浜 』 4 分 |
| 構造 | 鉄骨造 7階建 /地下 1 階 |
| 築年数 | 1985/9 【新耐震基準】 |
| 設備
|
|
| エレベーター | 1基 |
営業マンの一言 御堂筋線・堺筋線・京阪線の3WAYアクセス・角ビル、好ロケーションテナントビル■各種教室向き |
|

※取引態様:仲介
※上記、金額は募集条件です。 条件交渉など、詳細についてはお問合せ下さい。
※広告作成中に契約済みの場合はご容赦下さい。
※図面等現況が相違する場合は現況優先にてご容赦下さい。
KTビルの所在地周辺
ストリートビューを表示▼

























