ハウザー堺筋本町駅前ビル 4階-No.35781
中阪 浩之ナカサカ ヒロユキ
ハウザー堺筋本町駅前ビルの豆知識
「ハウザー堺筋本町駅前ビル」は、大阪市中央区安土町2丁目にございます、賃貸事務所テナントビル。
堺筋に面した8階建て。
1階にローソンさんがありますので、視認性は抜群。
大阪市営地下鉄・堺筋線・中央線の「堺筋本町駅」17番出入口より徒歩30秒の交通アクセスは、来店型オフィスに最適。
御堂筋線の本町駅へも徒歩5分の好立地です。
築年数は古いですが、2004年にリニューアルをし、オシャレで快適なオフィスに生まれ変わっています。
エントラスには、空調設備が完備され、来訪者を快適にお迎えします。
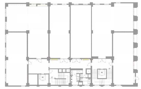
貸室内は、東・北・西面に建物がなく、採光の良く、天井の高さもあり、圧迫感がありません。
また、共用部の廊下は、昭和の建物らしく、ゆったりとしたスペースを活かし全面改装されています。
ハウザー堺筋本町駅前ビル その他の貸室情報
ハウザー堺筋本町駅前ビル 基本情報
| 種別 | 貸事務所(物件番号:35781) |
|---|---|
| 物件名 | ハウザー堺筋本町駅前ビル |
| 住所 | 大阪市中央区安土町2-2-15 |
| 所在階 | 4階部分7号室 |
| 契約面積 | 20.0 坪・ 66.12 ㎡ |
| 最寄駅 |
堺筋線 『
堺筋本町 』
0.5 分
御堂筋線 『 本町 』 6 分 中央線 『 堺筋本町 』 1 分 |
| 構造 | 鉄筋コンクリート造 8階建 /地下 1 階 |
| 築年数 | 1935/5 (リニューアル: 平成17年10月 ) |
| 設備
|
|
| エレベーター | 2基 |
営業マンの一言 大阪・堺筋本町エリアの賃貸事務所ビル。大阪メトロ堺筋線 堺筋本町駅徒歩1分 大阪メトロ御堂筋線 本町駅徒歩利用可能 堺筋面す駅近賃貸オフィス。大規模リニューアルでホテルの様な雰囲気で大変お洒落なビルに生まれ変わりました。 |
|
| 備考 | 貸し会議室 |

※取引態様:仲介
※上記、金額は募集条件です。 条件交渉など、詳細についてはお問合せ下さい。
※広告作成中に契約済みの場合はご容赦下さい。
※図面等現況が相違する場合は現況優先にてご容赦下さい。
ハウザー堺筋本町駅前ビルの所在地周辺
入居テナント
物件を再検索する
ハウザー堺筋本町駅前ビル 関連物件
ハウザー堺筋本町駅前ビル 近隣のよく似た坪数の貸事務所
-
Y’s淡路町ビル
大阪市中央区淡路町2
堺筋線「堺筋本町」徒歩5分
20.01坪 -
安田薬品ビル
大阪市中央区瓦町1
堺筋線「堺筋本町」徒歩5分
24.2坪 -
TTN堺筋本町ビル
大阪市中央区瓦町1
堺筋線「堺筋本町」徒歩3分
20.99坪 -
大阪堺筋Lタワー(旧:ランズ瓦町)
大阪市中央区瓦町1
堺筋線「堺筋本町」徒歩4分
20.0坪 -
三星SKビル
大阪市中央区北久宝寺町1
堺筋線「堺筋本町」徒歩3分
23.0坪 -
北久宝寺町1丁目・2階建、1棟貸
大阪市中央区北久宝寺町1
堺筋線「堺筋本町」徒歩2分
22.7坪 -
マエダビル本社ビル
大阪市中央区北久宝寺町2
堺筋線「堺筋本町」徒歩3分
25.0坪 -
第二シルバービル
大阪市中央区北久宝寺町2
堺筋線「堺筋本町」徒歩3分
20.0坪 -
三星中央別館ビル
大阪市中央区久太郎町1
堺筋線「堺筋本町」徒歩2分
23.0坪 -
フクダ不動産堺筋本町ビル
大阪市中央区久太郎町1
堺筋線「堺筋本町」徒歩1分
24.76坪






























