グラン・ピア四天王寺 2階-No.35807
グラン・ピア四天王寺 基本情報
| 種別 | 事務所・店舗(物件番号:35807) |
|---|---|
| 物件名 | グラン・ピア四天王寺 |
| 住所 | 大阪市天王寺区六万体町4-19 |
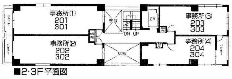
| 所在階 | 2階部分3号室 |
| 契約面積 | 9.06 坪・ 29.96 ㎡ |
| 賃料 | 総額
59,000 円 (税抜)・坪単価
6,512 円/坪 (税抜) 総額 64,900 円(税含む) |
| 共益費 | 総額 5,500 円 (税抜)・坪単価 607 円/坪 (税抜) 総額 6,050 円 (税含む) |
| 月額合計 | 総額 64,500 円(税抜)・坪単価 7,119 円(税抜) 総額 70,950 円 (税含む) |
| 敷金 | 無し |
| 礼金 | 60,500円(税含む) |
| 費用備考 | 賃貸保証加入要 |
| 最寄駅 | 谷町線 『 四天王寺夕陽丘 』 1 分 |
| 構造 | 鉄筋コンクリート造 8階建 |
| 築年数 | 1989/3 【新耐震基準】 |
| 設備
|
|
| エレベーター | 1基 |
営業マンの一言 駅近、大通りに面した貸事務所。賃料もロープライスでお勧めです。 |
|
| 備考 | オートロック |

※取引態様:仲介
※上記、金額は募集条件です。 条件交渉など、詳細についてはお問合せ下さい。
※広告作成中に契約済みの場合はご容赦下さい。
※図面等現況が相違する場合は現況優先にてご容赦下さい。
グラン・ピア四天王寺の所在地周辺
ストリートビューを表示▼





中阪 浩之



