玉造延三ビル(フロンティアビル) 4階-No.35818
玉造延三ビル(フロンティアビル) 基本情報
| 種別 | 貸事務所(物件番号:35818) |
|---|---|
| 物件名 | 玉造延三ビル(フロンティアビル)
6 |
| 住所 | 大阪市中央区玉造2-3-18 |
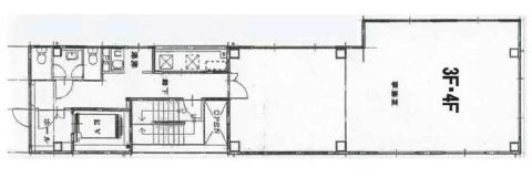
| 所在階 | 4階部分フロア号室 |
| 契約面積 | 26.87 坪・ 88.83 ㎡ |
| 賃料 | 総額
180,000 円 (税抜)・坪単価
6,699 円/坪 (税抜) 総額 198,000 円(税含む) |
| 共益費 | 総額 22,000 円 (税抜)・坪単価 819 円/坪 (税抜) 総額 24,200 円 (税含む) |
| 月額合計 | 総額 202,000 円(税抜)・坪単価 7,518 円(税抜) 総額 222,200 円 (税含む) |
| 敷金 | 360,000 円 |
| 礼金 | 396,000円(税含む) |
| 費用備考 | 賃貸保証加入要/火災保険加入要/その他諸費用あり |
| 最寄駅 |
長堀鶴見緑地線 『
玉造 』
5 分
環状線 『 玉造 』 5 分 |
| 構造 | 鉄骨造 7階建 |
| 築年数 | 2001/1 【新耐震基準】 |
| 設備
|
|
| エレベーター | 1基 |
営業マンの一言 JR大阪環状線と地下鉄長堀鶴見緑地線の「玉造駅」より徒歩4分 2001年竣工新耐震基準、築浅物件 |
|

※取引態様:仲介
※上記、金額は募集条件です。 条件交渉など、詳細についてはお問合せ下さい。
※広告作成中に契約済みの場合はご容赦下さい。
※図面等現況が相違する場合は現況優先にてご容赦下さい。
玉造延三ビル(フロンティアビル)の所在地周辺
ストリートビューを表示▼





堀中 忠久




