阪神野田駅前第2ビル 3階-No.36213
営業スタッフ紹介
中阪 浩之ナカサカ ヒロユキ
阪神野田駅前第2ビルの豆知識
「阪神野田駅前第2ビル」は、大阪市福島区吉野2丁目にございます、賃貸事務所・テナントビル。
新なにわ筋沿いに建つ、白い外壁の10階建て。
ビル名称の通り、阪神本線の「野田駅」・駅前ローターリより南へスグの好ロケーションオフィス。
大阪市営地下鉄・千日前線の「野田阪神駅」7番出入口からも徒歩1分。
JR東西線の「海老江駅」や環状線の「野田駅」の利用も可能な、マルチアクセスのビジネス拠点です。
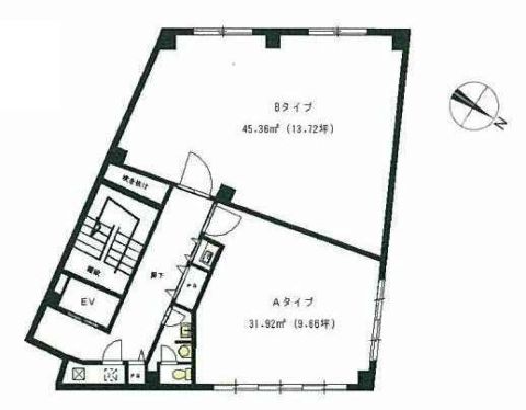
ワンフロア面積が約23坪と、コンパクト広さが人気の賃貸物件。
更に使い勝手の良い約10~13坪に分割した貸室もございます。
阪神・地下鉄・JR3線の駅前立地と視認性の高さから、来店型オフィスに最適。
業種はご相談くださいませ。
阪神野田駅前第2ビル 基本情報
| 種別 | 貸事務所(物件番号:36213) |
|---|---|
| 物件名 | 阪神野田駅前第2ビル |
| 住所 | 大阪市福島区吉野2-15-17 |
| 所在階 | 3階部分2号室 |
| 契約面積 | 13.72 坪・ 45.36 ㎡ |
| 最寄駅 |
千日前線 『
野田阪神 』
1 分
阪神線 『 野田 』 2 分 環状線 『 野田 』 6 分 |
| 構造 | 鉄筋コンクリート造 10階建 |
| 築年数 | 1994/4 【新耐震基準】 (リニューアル: 2004/10 ) |
| 設備
|
|
| エレベーター | 1基 |
営業マンの一言 地下鉄・阪神・JRが利用可能な好立地な貸事務所です。阪神野田駅前の賃貸オフィス・テナントビル。 |
|

※取引態様:仲介
※上記、金額は募集条件です。 条件交渉など、詳細についてはお問合せ下さい。
※広告作成中に契約済みの場合はご容赦下さい。
※図面等現況が相違する場合は現況優先にてご容赦下さい。
阪神野田駅前第2ビルの所在地周辺
ストリートビューを表示▼












