セントランドビル 3階-No.3754
中阪 浩之ナカサカ ヒロユキ
セントランドビルの豆知識
「セントランドビル」は、大阪市淀川区西中島3丁目にございます、賃貸事務所。
大通りに面した、ライトグレーのスタイリッシュな8階建て角ビル。
1階にコンビニが入る、駅近の好ロケーションです。
2010年にリニューアル。
白い格子がオシャレなエントランスドア。
各所に生花が添えられた、共用部も白を基調とした、清潔感あふれる空間が広がっています。
新大阪中心にビルを所有の貸主様が、清掃日本一を目指して、徹底的な自主管理をされており、安心・快適なオフィススペースが確保されています。
貸室は、約20坪スパンでの区画割りが可能。
グレードの高い、オフィス拠点をお探しの方にオススメです。
大阪市営地下鉄・御堂筋線の「西中島南方駅」より徒歩2分。
阪急線「南方駅」から徒歩3分。
JR「新大阪駅」からも徒歩5分と、マルチアクセスが可能な交通至便です。
セントランドビル 基本情報
| 種別 | 貸事務所(物件番号:3754) |
|---|---|
| 物件名 | セントランドビル |
| 住所 | 大阪市淀川区西中島3-23-16 |
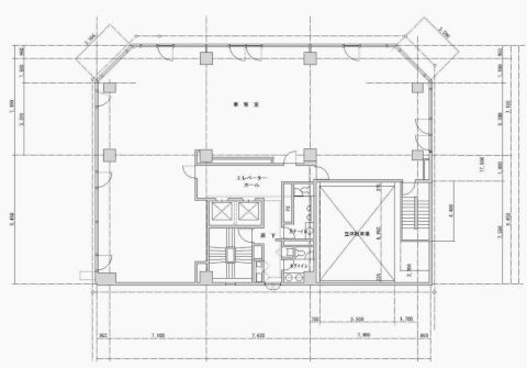
| 所在階 | 3階部分D号室 |
| 契約面積 | 26.0 坪・ 85.96 ㎡ |
| 賃料 | お電話・メールにてお問合下さい。 |
| 共益費 | お電話・メールにてお問合下さい。 |
| 月額合計 | お電話・メールにてお問合下さい。 |
| 保証金 | お電話・メールにてお問合下さい。 |
| 最寄駅 |
御堂筋線 『
西中島南方 』
2 分
御堂筋線 『 新大阪 』 6 分 |
| 構造 | 鉄骨鉄筋コンクリート造 8階建 |
| 築年数 | 1986/1 【新耐震基準】 |
| 設備
|
|
| エレベーター | 2基 |
営業マンの一言 新大阪エリアの清潔感あふれる賃貸オフィスビルです。大阪メトロ御堂筋線 西中島南方駅徒歩2分の好立地 新大阪駅利用可能 大通りに面した角ビル 視認性高く貸室内の採光良 |
|
| 備考 | リフレッシュルーム |

※取引態様:仲介
※上記、金額は募集条件です。 条件交渉など、詳細についてはお問合せ下さい。
※広告作成中に契約済みの場合はご容赦下さい。
※図面等現況が相違する場合は現況優先にてご容赦下さい。
セントランドビルの所在地周辺
物件を再検索する
セントランドビル 近隣のよく似た坪数の貸事務所
-
新大阪第二日大ビル
大阪市東淀川区東中島1
御堂筋線「西中島南方」徒歩5分
26.2坪 -
プロジェクトビル
大阪市淀川区西中島3
御堂筋線「西中島南方」徒歩4分
26.92坪 -
新居第10ビル
大阪市淀川区西中島3
御堂筋線「西中島南方」徒歩5分
29.07坪 -
第2ユヤマビル
大阪市淀川区西中島3
御堂筋線「西中島南方」徒歩1分
28.8坪 -
NLC新大阪三洋ビル
大阪市淀川区西中島4
御堂筋線「西中島南方」徒歩3分
29.28坪 -
チサンマンション第1新大阪ビル
大阪市淀川区西中島4
御堂筋線「西中島南方」徒歩3分
29.35坪 -
新大阪北田ビル
大阪市淀川区西中島4
御堂筋線「西中島南方」徒歩5分
26.49坪 -
花原第3ビル
大阪市淀川区西中島4
御堂筋線「西中島南方」徒歩5分
26.6坪 -
新大阪ローズビル
大阪市淀川区西中島5
御堂筋線「西中島南方」徒歩3分
29.13坪 -
第6新大阪ビル
大阪市淀川区西中島6
御堂筋線「西中島南方」徒歩3分
25.27坪






















