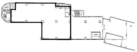
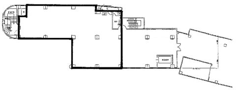
ザクロコーポレーション桜川ビル 8階-No.38740
ザクロコーポレーション桜川ビル 基本情報
| 種別 | 事務所・店舗(物件番号:38740) |
|---|---|
| 物件名 | ザクロコーポレーション桜川ビル |
| 住所 | 大阪市浪速区桜川2-2-31 |
| 所在階 | 8階部分号室 |
| 契約面積 | 66.55 坪・ 220.00 ㎡ |
| 最寄駅 |
千日前線 『
桜川 』
1 分
阪神なんば線 『 桜川 』 2 分 南海線 『 難波 』 8 分 |
| 構造 | 鉄骨鉄筋コンクリート造 9階建 |
| 築年数 | 1986/6 【新耐震基準】 |
| 設備
|
|
| エレベーター | 1基 |
営業マンの一言 千日前筋面す桜川駅スグ大阪メトロ千日前線 桜川駅徒歩1分 ワンフロア約90坪。事務所・店舗もご相談ください。 |
|

※取引態様:仲介
※上記、金額は募集条件です。 条件交渉など、詳細についてはお問合せ下さい。
※広告作成中に契約済みの場合はご容赦下さい。
※図面等現況が相違する場合は現況優先にてご容赦下さい。
ザクロコーポレーション桜川ビルの所在地周辺
ストリートビューを表示▼






中阪 浩之


