プロパレス安土町ビル 3階-No.38765
中阪 浩之ナカサカ ヒロユキ
プロパレス安土町ビルの豆知識
「プロパレス安土町」は2014年10月にエントランス及び外壁のリニューアルが完成し、洗練された賃貸オフィスビルに生まれ変わりました。
大阪市営地下鉄堺筋線・中央線の「堺筋本町」駅徒歩2分の好立地。エレベーター2基、24時間使用可能・個別空調・個別機械警備のインテリジェントビルがテナント様のビジネスを幅広く展開させてくれます。
「プロパレス安土町」の一番の魅力は、初期費用が他のビルと比較してローコストなところです。
一般的に賃貸オフィスビルの場合、契約時に保証金・敷金もしくは礼金として賃料の6~12ヶ月分が必要になります。しかし「プロパレス安土町」は、賃貸保証会社加入が条件となりますが、敷金・礼金が0円なのです。
では“賃貸保証会社加入”とは何か?となります。もともと、賃貸住宅の契約時に連帯保証人を用意できない人の為の保証制度であったのが、近年では万一の家賃滞納分を保証会社が代位弁済を行う制度として用いられています。つまり、敷金などを預らないかわりに、賃料滞納などのリスクを賃貸保証で補うものですので、賃貸保証料の負担は借主にあります。
プロパレス安土町ビル その他の貸室情報
プロパレス安土町ビル 基本情報
| 種別 | 事務所(物件番号:38765) |
|---|---|
| 物件名 | プロパレス安土町ビル |
| 住所 | 大阪市中央区安土町1-6-19 |
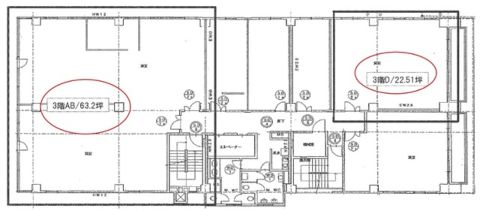
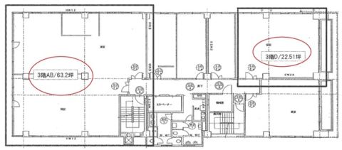
| 所在階 | 3階部分AB号室 |
| 契約面積 | 63.2 坪・ 208.93 ㎡ |
| 最寄駅 |
堺筋線 『
堺筋本町 』
2 分
御堂筋線 『 本町 』 7 分 中央線 『 堺筋本町 』 2 分 |
| 構造 | 鉄骨鉄筋コンクリート造 8階建 |
| 築年数 | 1974/4 (リニューアル: 2014/11 ) |
| 設備
|
|
| エレベーター | 2基 |
営業マンの一言 リニューアル貸しオフィス。大阪メトロ堺筋線 堺筋本町駅近く御堂筋本町駅も利用可能 1階、エントランス&外壁リニューアル完成!敷金・礼金0円の賃貸事務所です。 |
|
| 備考 | 免震・耐震補強 |

※取引態様:仲介
※上記、金額は募集条件です。 条件交渉など、詳細についてはお問合せ下さい。
※広告作成中に契約済みの場合はご容赦下さい。
※図面等現況が相違する場合は現況優先にてご容赦下さい。
プロパレス安土町ビルの所在地周辺
物件を再検索する
プロパレス安土町ビル 関連物件
プロパレス安土町ビル 近隣のよく似た坪数の貸事務所
-
野村不動産大阪ビル
大阪市中央区安土町1
堺筋線「堺筋本町」徒歩1分
68.87坪 -
大阪国際ビルディング
大阪市中央区安土町2
堺筋線「堺筋本町」徒歩1分
66.03坪 -
タカクラビル
大阪市中央区淡路町2
堺筋線「堺筋本町」徒歩7分
66.97坪 -
ミラータワービル
大阪市中央区瓦町2
堺筋線「堺筋本町」徒歩4分
64.7坪 -
SC堺筋本町ビル
大阪市中央区北久宝寺町1
堺筋線「堺筋本町」徒歩3分
62.58坪 -
三星中央別館ビル
大阪市中央区久太郎町1
堺筋線「堺筋本町」徒歩2分
62.0坪 -
三星備後町ビル
大阪市中央区備後町1
堺筋線「堺筋本町」徒歩2分
67.0坪 -
三星本町ビル
大阪市中央区本町1
堺筋線「堺筋本町」徒歩1分
66.0坪 -
堺筋本町センタービル
大阪市中央区本町2
堺筋線「堺筋本町」徒歩0.2分
60.43坪 -
セントピア堺筋本町ビル
大阪市中央区南本町2
堺筋線「堺筋本町」徒歩1分
66.04坪





















