新大阪 店舗・事務所 1階-No.3885
堀中 忠久ホリナカ タダヒサ
当該ビルの豆知識
「第1スエヒロビル」は、大阪市淀川区西中島7丁目にございます、賃貸事務所ビルです。
大阪市営地下鉄・御堂筋線の「新大阪駅」より徒歩2分、JR東海道線・新幹線の「新大阪駅」からも徒歩5分と、フットワーク抜群の交通アクセス。
新御堂筋からも、西スグの場所ですので、お車でのアクセスもスムーズです。
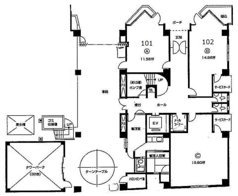
貸室は、基準階面積約100坪、または2~3分割した20~40坪台の貸室が中心。
2015年、さらに使いやすい10坪台のお部屋割りプランが登場!
大阪の玄関口“新大阪”で、オフィス拠点をお探しの企業様は是非、お問合せくださいませ。
個別空調、機械警備、男女別シャワートイレ、機械式駐車場併設、さらには貸し会議室もございます。
駅近、きれいで快適なオフィス空間は、ビジネス効率UP間違いナシ。
賃貸条件も、ビルディングエステートが交渉してまいります。是非、お問合せ・ご内覧をくださいませ。
新大阪 店舗・事務所 基本情報
| 種別 | 店舗・事務所(物件番号:3885) |
|---|---|
| 物件名 | 新大阪 店舗・事務所
軽飲食、相談可 |
| 住所 | 大阪市淀川区西中島7 |
| 所在階 | 1階部分101号室 |
| 契約面積 | 11.58 坪・ 38.29 ㎡ |
| 最寄駅 |
御堂筋線 『
新大阪 』
2 分
東海道本線 『 新大阪 』 4 分 |
| 構造 | 鉄筋コンクリート造 8階建 |
| 築年数 | 1987/11 【新耐震基準】 |
| 設備
|
|
| エレベーター | 1基 |
営業マンの一言 50名収容の貸会議室有ります新大阪駅近く、綺麗な賃貸事務所ビル!新御堂筋から西へ直ぐの立地(価格もじゅうぶんに相談可能です) ■エステ・美容室・クリニック向き■物販向き■各種教室向き |
|
| 備考 | 貸し会議室 |

※取引態様:仲介
※上記、金額は募集条件です。 条件交渉など、詳細についてはお問合せ下さい。
※広告作成中に契約済みの場合はご容赦下さい。
※図面等現況が相違する場合は現況優先にてご容赦下さい。
新大阪 店舗・事務所の所在地周辺
物件を再検索する
新大阪 店舗・事務所 関連物件
新大阪 店舗・事務所 近隣のよく似た坪数の貸事務所
-
新大阪コスモビル
大阪市東淀川区東中島1
御堂筋線「新大阪」徒歩9分
12.95坪 -
ケイアンドエイビル
大阪市淀川区西中島5
御堂筋線「新大阪」徒歩6分
11.85坪 -
新大阪エクセルハイツ
大阪市淀川区西中島7
御堂筋線「新大阪」徒歩5分
13.46坪 -
オリエンタル新大阪ビル
大阪市淀川区西中島7
御堂筋線「新大阪」徒歩2分
13.3坪 -
新大阪SONEビル
大阪市淀川区西中島7
御堂筋線「新大阪」徒歩4分
11.34坪 -
サンタワー新大阪ビル
大阪市淀川区西中島7
御堂筋線「新大阪」徒歩4分
13.3坪 -
新大阪ビル西館
大阪市淀川区西中島7
御堂筋線「新大阪」徒歩2分
12.29坪 -
日宝北2号館ビル
大阪市淀川区西中島7
御堂筋線「新大阪」徒歩5分
10.52坪 -
新大阪八千代ビル
大阪市淀川区宮原4
御堂筋線「新大阪」徒歩3分
14.31坪 -
PMO EX新大阪・H1O新大阪
大阪市淀川区宮原4
御堂筋線「新大阪」徒歩5分
12.1坪


























