フロンティア新大阪駅前ビル 3階-No.38943
営業スタッフ紹介
中阪 浩之ナカサカ ヒロユキ
フロンティア新大阪駅前ビルの豆知識
「ダレモビル」は、大阪市東淀川区西淡路1丁目にございますSOHO向き賃貸オフィスビルです。
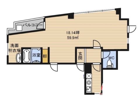
ワンフロア60㎡・約18坪のJR線横に建つペンシルビル。
周辺が開けているため、4面採光の日当たり抜群。
貸室内に、お風呂・トイレ・キッチンもそろったマンションタイプですので、SOHOやホームオフィスとしての仕様が可能です。
場所は、JR「新大阪駅」東口から徒歩2分の好立地。もちろん地下鉄御堂筋線も利用可能。駐車場もあります。
“新大阪エリア”で“コンパクトな事務所”・“居住もできるオフィス”・“お部屋の明るさが絶対必要!”“できれば駐車場もほしい”を満たす希少物件。
2012年には、リニューアルも完了済です。
“SOHOタイプ”とは、小規模な自宅兼用オフィスを指します。
つまり、居住スペースとして必要な浴室などの設備があること。つまり寝泊りが出来ることがメリット。一方で、それら水廻りの面積も貸室内に含むため、実際にオフィス利用できるスペースが小さくなることがデメリットとなります。
フロンティア新大阪駅前ビル 基本情報
| 種別 | 事務所・店舗(物件番号:38943) |
|---|---|
| 物件名 | フロンティア新大阪駅前ビル |
| 住所 | 大阪市東淀川区西淡路1-3-32 |
| 所在階 | 3階部分号室 |
| 契約面積 | 18.15 坪・ 60.00 ㎡ |
| 賃料 | お電話・メールにてお問合下さい。 |
| 共益費 | お電話・メールにてお問合下さい。 |
| 月額合計 | お電話・メールにてお問合下さい。 |
| 保証金 | お電話・メールにてお問合下さい。 |
| 最寄駅 |
東海道本線 『
新大阪 』
2 分
御堂筋線 『 新大阪 』 6 分 |
| 構造 | 鉄筋コンクリート造 13階建 |
| 築年数 | 1992/5 【新耐震基準】 (リニューアル: 2012年 ) |
| 設備
|
|
| エレベーター | 1基 |
営業マンの一言 駅近、ローコスト&ロープライス”全室4面彩光良好、ワンフロアオフィス新大阪駅東口から徒歩2分のワンフロア仕様・4面彩光。’SOHOタイプ・ホームオフィスに適しています。 |
|
| 備考 | オートロック |

※取引態様:仲介
※上記、金額は募集条件です。 条件交渉など、詳細についてはお問合せ下さい。
※広告作成中に契約済みの場合はご容赦下さい。
※図面等現況が相違する場合は現況優先にてご容赦下さい。
フロンティア新大阪駅前ビルの所在地周辺
ストリートビューを表示▼











