SRビル梅新 4階-No.39098
営業スタッフ紹介
中阪 浩之ナカサカ ヒロユキ
SRビル梅新の豆知識
「新日本梅新ビル」は、大阪市北区西天満6丁目にございます、賃貸事務所ビル。
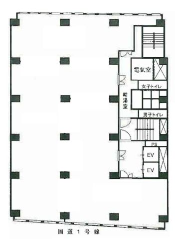
曽根崎通り(国道1号線)に面しており、各梅田駅が徒歩圏内エリア。
交通アクセスは、JR東西線の「北新地駅」より徒歩4分、地下鉄谷町線の「東梅田駅」より徒歩5分、大阪のメインストリート御堂筋や大阪の北部を南北に貫く、全国屈指の交通量を誇る“新御堂筋”からも近く、公共交通機関・車ともに、フットワークの良い立地です。
ワンフロア150坪超の広さを、使いやすい20坪前後の貸室に分割しております。
中には、自然採光のとれないお部屋もございますが、内装等をオフィス仕様のシックな雰囲気に仕上げており、居心地のよい空間となっております。
梅田エリアで、視認性の高い大通り沿いの物件は希少です。
また、大阪地方裁判所にも近く、法曹関連のオフィスに、また個人事務所にも適しています。
「新日本梅新ビル」の西側・北新地駅には、大阪キタを代表する飲食店街“北新地”。
新御堂筋近くには、近松門左衛門の人形浄瑠璃「曾根崎心中」ゆかりの地として有名な“露天神社”(つゆのてんじんじゃ・通称:お初天神)と、曽根崎お初天神通り商店街で賑わうエリアです。
SRビル梅新 基本情報
| 種別 | 貸事務所(物件番号:39098) |
|---|---|
| 物件名 | SRビル梅新 |
| 住所 | 大阪市北区西天満6-7-2 |
| 所在階 | 4階部分C号室 その他、貸室 |
| 契約面積 | 19.28 坪・ 63.74 ㎡ |
| 賃料 | 総額
134,960 円 (税抜)・坪単価
7,000 円/坪 (税抜) 総額 148,456 円(税含む) |
| 共益費 | 総額 賃料に含む (税抜)・坪単価 賃料に含む (税抜) 総額 賃料に含む (税含む) |
| 月額合計 | 総額 134,960 円(税抜)・坪単価 7,000 円(税抜) 総額 148,456 円 (税含む) |
| 保証金 | 6ヶ月 |
| 礼金 | 無し |
| 費用備考 | 賃貸保証加入要 |
| 最寄駅 |
谷町線 『
南森町 』
6 分
東西線 『 北新地 』 4 分 御堂筋線 『 梅田 』 10 分 |
| 構造 | 鉄筋コンクリート造 8階建 /地下 2 階 |
| 築年数 | 1971/11 |
| 設備
|
|
| エレベーター | 2基 |
営業マンの一言 大阪梅田エリア・1号線沿いの賃貸オフィス。曽根崎通りに面した賃貸事務所ビル。賃貸条件変更しました! |
|

※取引態様:仲介
※上記、金額は募集条件です。 条件交渉など、詳細についてはお問合せ下さい。
※広告作成中に契約済みの場合はご容赦下さい。
※図面等現況が相違する場合は現況優先にてご容赦下さい。
SRビル梅新の所在地周辺
ストリートビューを表示▼
SRビル梅新 その他の部屋情報
| 階 | 号室 | 坪数 | ㎡数 | 賃料 | 共益費 | 保証金 | |
|---|---|---|---|---|---|---|---|
| 2階 | D | 39.51坪 | 130.62㎡ | 316,080 円 | 賃料に含む | 6ヶ月 | ![]() |
| 3階 | B | 59.88坪 | 197.96㎡ | 479,040 円 | 賃料に含む | 6ヶ月 | ![]() |
| 7階 | C | 28.09坪 | 92.86㎡ | 210,676 円 | 賃料に含む | 6ヶ月 | ![]() |
















