児玉ビル 3階-No.39534
児玉ビル 基本情報
| 種別 | 事務所・店舗(物件番号:39534) |
|---|---|
| 物件名 | 児玉ビル |
| 住所 | 大阪市福島区福島5-11-23 |
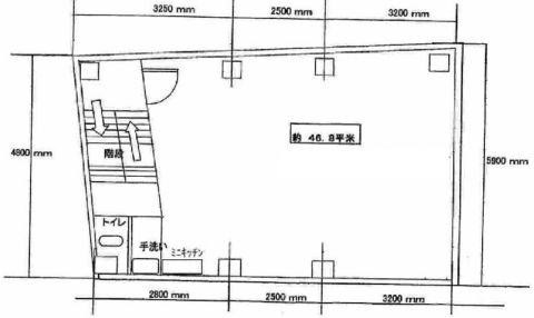
| 所在階 | 3階部分フロア号室 |
| 契約面積 | 14.0 坪・ 46.29 ㎡ |
| 最寄駅 |
阪神線 『
福島 』
2 分
東西線 『 新福島 』 2 分 環状線 『 福島 』 3 分 |
| 構造 | 鉄骨造 4階建 |
| 築年数 | 1969/3 |
| 設備
|
|
営業マンの一言 ■エステ・美容室・クリニック向き■各種教室向き |
|

※取引態様:仲介
※上記、金額は募集条件です。 条件交渉など、詳細についてはお問合せ下さい。
※広告作成中に契約済みの場合はご容赦下さい。
※図面等現況が相違する場合は現況優先にてご容赦下さい。
児玉ビルの所在地周辺
ストリートビューを表示▼




中阪 浩之


