TATSUMI扇町公園ビル(旧:梅田扇町通) 2階-No.40076
営業スタッフ紹介
中阪 浩之ナカサカ ヒロユキ
TATSUMI扇町公園ビル(旧:梅田扇町通)の豆知識
「梅田扇町通ビル」は、大阪市北区野崎町にございます、賃貸事務所ビル。
扇町通りに面した9階建て。
1965年の築ですが、耐震補強工事済で安心のオフィス。
2008年には、外装・エントランスホール、トイレ等のリニューアルも完了。
エレベーター2基、個別空調、駐輪場、男女別シャワートイレなど、快適なオフィス環境が整っています。
基準階面積は約90坪ありますが、約10坪と手頃な広さに分割した貸室もございます。
最寄駅は、大阪市営地下鉄・堺筋線の「扇町駅」より徒歩5分、谷町線の「東梅田駅」からも徒歩7分の交通アクセス。
名実ともに大阪№1の“梅田”を徒歩圏内とするオフィス拠点は、効率の良いフットワークだけでなく、ビジネスステージとして、ランクアップが可能。
それだけに、賃貸条件も他と比較するとハイレベルで、提供坪数も大きめのビルが多いのが現状。
そんな中、「梅田扇町通ビル」は広さも、価格もお手頃なオススメ賃貸物件です。
TATSUMI扇町公園ビル(旧:梅田扇町通) 基本情報
| 種別 | 貸事務所(物件番号:40076) |
|---|---|
| 物件名 | TATSUMI扇町公園ビル(旧:梅田扇町通)
エレベーター2基・時間外オートロック・共用トイレ・給湯室・定期借家契約 |
| 住所 | 大阪市北区野崎町9-13 |
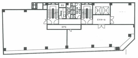
| 所在階 | 2階部分3号室 その他、貸室 |
| 契約面積 | 18.34 坪・ 60.63 ㎡ |
| 賃料 | 総額
128,380 円 (税抜)・坪単価
7,000 円/坪 (税抜) 総額 141,218 円(税含む) |
| 共益費 | 総額 55,000 円 (税抜)・坪単価 2,999 円/坪 (税抜) 総額 60,500 円 (税含む) |
| 月額合計 | 総額 183,380 円(税抜)・坪単価 9,999 円(税抜) 総額 201,718 円 (税含む) |
| 敷金 | 3ヶ月 |
| 礼金 | 1ヶ月 |
| 最寄駅 |
堺筋線 『
扇町 』
5 分
谷町線 『 東梅田 』 7 分 環状線 『 大阪 』 10 分 |
| 構造 | 鉄骨鉄筋コンクリート造 9階建 /地下 1 階 |
| 築年数 | 1965/1 (リニューアル: 2008/12 ) |
| 設備
|
|
| エレベーター | 2基 |
営業マンの一言 東梅田エリアのワンフロア空き予定でました!2008年、大規模リニューアル工事済み、デザイナーズオフィスに生まれ変わりました。 |
|
| 備考 | 免震・耐震補強 |

※取引態様:仲介
※上記、金額は募集条件です。 条件交渉など、詳細についてはお問合せ下さい。
※広告作成中に契約済みの場合はご容赦下さい。
※図面等現況が相違する場合は現況優先にてご容赦下さい。
TATSUMI扇町公園ビル(旧:梅田扇町通)の所在地周辺
ストリートビューを表示▼

























