中津ヤマモトビル 2階-No.40246
中津ヤマモトビル 基本情報
| 種別 | 貸事務所(物件番号:40246) |
|---|---|
| 物件名 | 中津ヤマモトビル |
| 住所 | 大阪市北区中津3-7-41 |
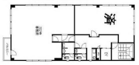
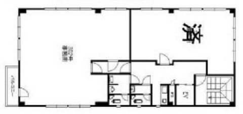
| 所在階 | 2階部分1号室 |
| 契約面積 | 18.6 坪・ 61.49 ㎡ |
| 賃料 | お電話・メールにてお問合下さい。 |
| 共益費 | お電話・メールにてお問合下さい。 |
| 月額合計 | お電話・メールにてお問合下さい。 |
| 保証金 | お電話・メールにてお問合下さい。 |
| 最寄駅 | 御堂筋線 『 中津 』 5 分 |
| 構造 | 鉄骨造 5階建 |
| 築年数 | 1993/3 【新耐震基準】 |
| 設備
|
|
| エレベーター | 1基 |
営業マンの一言 大阪メトロ御堂筋線 中津駅徒歩5分 24時間利用可・LED照明・個別空調・土日祝日利用可能 明るく風通しの良いビル |
|

※取引態様:仲介
※上記、金額は募集条件です。 条件交渉など、詳細についてはお問合せ下さい。
※広告作成中に契約済みの場合はご容赦下さい。
※図面等現況が相違する場合は現況優先にてご容赦下さい。
中津ヤマモトビルの所在地周辺
物件を再検索する
中津ヤマモトビル 関連物件
中津ヤマモトビル 近隣のよく似た坪数の貸事務所
-
サン・オークスビル
大阪市北区豊崎2
御堂筋線「中津」徒歩5分
16.3坪 -
セレコート中津ビル(旧、西部ビル)
大阪市北区豊崎2
御堂筋線「中津」徒歩5分
16.2坪 -
TOビル
大阪市北区豊崎3
御堂筋線「中津」徒歩3分
18.0坪 -
エイトビル
大阪市北区豊崎3
御堂筋線「中津」徒歩3分
16.7坪 -
ローツェⅡ
大阪市北区豊崎3
御堂筋線「中津」徒歩3分
16.29坪 -
三栄ビル(北区豊崎)
大阪市北区豊崎3
御堂筋線「中津」徒歩1分
15.1坪 -
大明ビル(ダイメイ)
大阪市北区豊崎3
御堂筋線「中津」徒歩1分
15.21坪 -
オムシスビル
大阪市北区豊崎7
御堂筋線「中津」徒歩2分
18.15坪 -
桜井産商ビル
大阪市北区中津1
御堂筋線「中津」徒歩1分
15.0坪 -
第二東洋ビル
大阪市北区中津1
御堂筋線「中津」徒歩2分
17.79坪




中阪 浩之












