永井ビル 6階-No.40341
営業スタッフ紹介
中阪 浩之ナカサカ ヒロユキ
永井ビル 基本情報
| 種別 | 事務所・店舗(物件番号:40341) |
|---|---|
| 物件名 | 永井ビル |
| 住所 | 大阪市天王寺区堂ケ芝1-11-18 |
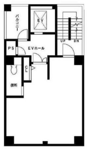
| 所在階 | 6階部分フロア号室 |
| 契約面積 | 13.92 坪・ 46.02 ㎡ |
| 最寄駅 | 環状線 『 桃谷 』 1 分 |
| 構造 | 鉄骨造 10階建 |
| 築年数 | 1991/2 【新耐震基準】 |
| 設備
|
|
| エレベーター | 1基 |
営業マンの一言 |
|

※取引態様:仲介
※上記、金額は募集条件です。 条件交渉など、詳細についてはお問合せ下さい。
※広告作成中に契約済みの場合はご容赦下さい。
※図面等現況が相違する場合は現況優先にてご容赦下さい。
永井ビルの所在地周辺
ストリートビューを表示▼






