難波末沢ビル 4階-No.40363
難波末沢ビル 基本情報
| 種別 | 貸事務所(物件番号:40363) |
|---|---|
| 物件名 | 難波末沢ビル
道路側の明るいオフィス |
| 住所 | 大阪市浪速区難波中3-5-4 |
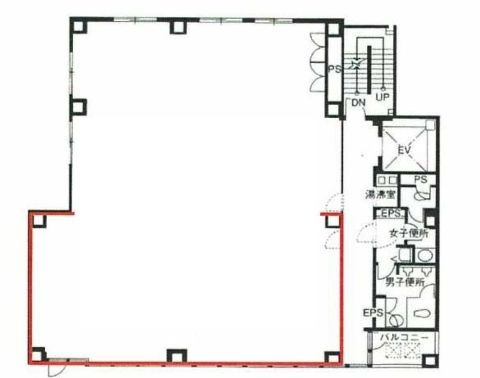
| 所在階 | 4階部分号室 |
| 契約面積 | 27.24 坪・ 90.05 ㎡ |
| 最寄駅 |
御堂筋線 『
なんば 』
4 分
近鉄奈良線 『 近鉄難波 』 5 分 |
| 構造 | S(鉄骨)造 9階建 |
| 築年数 | 1994/2 【新耐震基準】 |
| 設備
|
|
| エレベーター | 1基 11人乗 |
営業マンの一言 |
|

※取引態様:仲介
※上記、金額は募集条件です。 条件交渉など、詳細についてはお問合せ下さい。
※広告作成中に契約済みの場合はご容赦下さい。
※図面等現況が相違する場合は現況優先にてご容赦下さい。
難波末沢ビルの所在地周辺
ストリートビューを表示▼
物件を再検索する
難波末沢ビル 近隣のよく似た坪数の貸事務所
-
朝日生命難波ビル
大阪市浪速区難波中3
御堂筋線「なんば」徒歩5分
29.82坪 -
GP-GATEビル
大阪市中央区難波3
御堂筋線「なんば」徒歩1分
29.64坪 -
COCO NAMBA
大阪市中央区難波千日前
御堂筋線「なんば」徒歩5分
27.89坪





中阪 浩之





