日本生命御堂筋八幡町ビル 11階-No.41433
営業スタッフ紹介
堀中 忠久ホリナカ タダヒサ
日本生命御堂筋八幡町ビルの豆知識
「日本生命御堂筋八幡町ビル」は、大阪市中央区西心斎橋2丁目にございます、賃貸事務所ビル。
大阪メインストリート“御堂筋”に面した地下2階・地上12階建て、フロア面積約200坪の大型オフィス。
ミナミの中心地に位置し、重厚感ある外観は視認性抜群。
1階にはブランドショップ“トリーバーチ”が入居しています。
1974年竣工ですが、2000年には共用部のリニューアル済。
明るいエントランスホール、ゆったりくつろげるリフレッシュルームなど、ビルスペックも充実。
管理も良く、入居テナント向けサービスも行き届き、快適なオフィススペースが確保されています。
大阪市営地下鉄・御堂筋線の「心斎橋駅」より徒歩2分。
「なんば駅」や「四ツ橋駅」からも徒歩アクセスOK。
フットワークの良い大阪ビジネス拠点です。
日本生命御堂筋八幡町ビル その他の貸室情報
日本生命御堂筋八幡町ビル 基本情報
| 種別 | 貸事務所(物件番号:41433) |
|---|---|
| 物件名 | 日本生命御堂筋八幡町ビル |
| 住所 | 大阪市中央区西心斎橋2-1-5 |
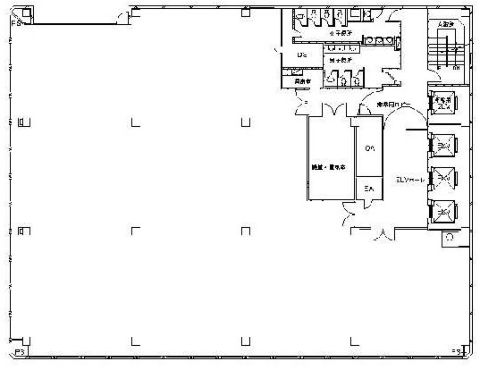
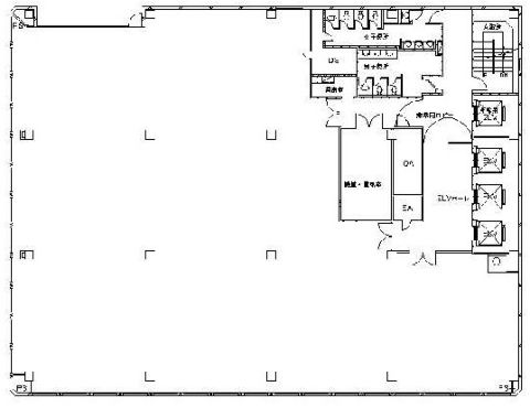
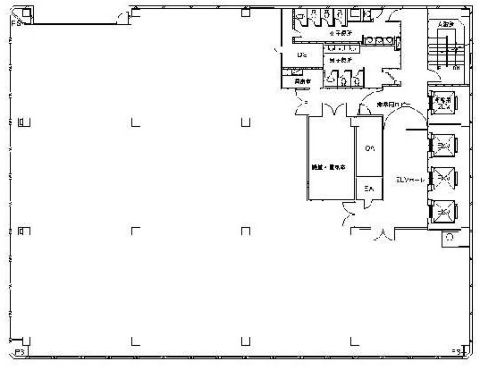
| 所在階 | 11階部分号室 |
| 契約面積 | 95.0 坪・ 314.05 ㎡ |
| 最寄駅 |
御堂筋線 『
心斎橋 』
2 分
御堂筋線 『 なんば 』 6 分 四ツ橋線 『 四ツ橋 』 7 分 |
| 構造 | 鉄骨鉄筋コンクリート造 12階建 /地下 2 階 |
| 築年数 | 1974/1 (リニューアル: 2000/01 ) |
| 設備
|
|
| エレベーター | 4基 |
営業マンの一言 大阪ミナミ心斎橋の賃貸事務所。大阪メトロ御堂筋線 心斎橋駅徒歩2分 なんば駅徒歩6分 大阪メトロ四ツ橋線 四ツ橋駅徒歩7分 御堂筋に面す重厚感の有る大型ハイグレードオフィスビル、心斎橋~なんばを繋ぐ中間点 |
|
| 備考 | リフレッシュルーム |

※取引態様:仲介
※上記、金額は募集条件です。 条件交渉など、詳細についてはお問合せ下さい。
※広告作成中に契約済みの場合はご容赦下さい。
※図面等現況が相違する場合は現況優先にてご容赦下さい。
日本生命御堂筋八幡町ビルの所在地周辺
ストリートビューを表示▼




























