カーニープレイス本町ビル 3階-No.41859
カーニープレイス本町ビル 基本情報
| 種別 | 貸事務所(物件番号:41859) |
|---|---|
| 物件名 | カーニープレイス本町ビル |
| 住所 | 大阪市西区阿波座1-6-13 |
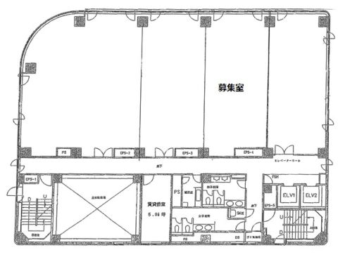
| 所在階 | 3階部分C号室 その他、貸室 |
| 契約面積 | 20.0 坪・ 66.12 ㎡ |
| 賃料 | 総額
190,000 円 (税抜)・坪単価
9,500 円/坪 (税抜) 総額 209,000 円(税含む) |
| 共益費 | 総額 70,000 円 (税抜)・坪単価 3,500 円/坪 (税抜) 総額 77,000 円 (税含む) |
| 月額合計 | 総額 260,000 円(税抜)・坪単価 13,000 円(税抜) 総額 286,000 円 (税含む) |
| 敷金 | 2,860,000 円 |
| 解約引 | 無し |
| 最寄駅 |
四ツ橋線 『
本町 』
1 分
御堂筋線 『 本町 』 6 分 中央線 『 本町 』 1 分 |
| 構造 | 鉄骨鉄筋コンクリート造 10階建 /地下 1 階 |
| 築年数 | 1989/1 【新耐震基準】 |
| 設備
|
|
| エレベーター | 2基 |
営業マンの一言 大阪メトロ四ツ橋線 本町駅徒歩1分 大阪メトロ御堂筋線・四ツ橋線・中央線利用可能 中央大通沿いビルグレードも良し 視認性の高い賃貸ビル |
|

※取引態様:仲介
※上記、金額は募集条件です。 条件交渉など、詳細についてはお問合せ下さい。
※広告作成中に契約済みの場合はご容赦下さい。
※図面等現況が相違する場合は現況優先にてご容赦下さい。
カーニープレイス本町ビルの所在地周辺
カーニープレイス本町ビル その他の部屋情報
物件を再検索する
カーニープレイス本町ビル 関連物件
カーニープレイス本町ビル 近隣のよく似た坪数の貸事務所
-
ACDC
大阪市西区阿波座1
四ツ橋線「本町」徒歩2分
23.78坪 -
新興ビル
大阪市西区阿波座1
四ツ橋線「本町」徒歩3分
24.1坪 -
GABIN西本町(キャビン西本町)
大阪市西区阿波座1
四ツ橋線「本町」徒歩4分
25.0坪 -
小林ビル東棟
大阪市西区立売堀1
四ツ橋線「本町」徒歩4分
22.57坪 -
本町KAZビル
大阪市西区靱本町1
四ツ橋線「本町」徒歩1分
20.0坪 -
PAX本町ビル
大阪市西区靱本町1
四ツ橋線「本町」徒歩3分
20.5坪 -
コットンニッセイビル
大阪市西区靱本町1
四ツ橋線「本町」徒歩2分
23.79坪 -
なにわ筋ビル
大阪市西区靱本町1
四ツ橋線「本町」徒歩3分
22.95坪 -
大阪栄聯(エイレン)ビル
大阪市西区西本町1
四ツ橋線「本町」徒歩1分
20.72坪 -
扶桑ビル(フソウ)
大阪市西区西本町1
四ツ橋線「本町」徒歩1分
20.0坪








中阪 浩之













