京阪神瓦町ビル 3階-No.42074
 
                                    中阪 浩之
中阪 浩之ナカサカ ヒロユキ
京阪神瓦町ビルの豆知識
「京阪神瓦町ビル」は、大阪市中央区瓦町4丁目にございます、賃貸事務所ビル。
大阪のメインストリート“御堂筋”に面した、鉄筋鉄骨コンクリート造り、地上9階・地下3階建て、基準階面積が約360坪の大型オフィス。
築40年以上になりますが、新耐震基準に基づき設計された建物と同程度の耐震性能があることも確認済。
北御堂さんのスグ北側に位置しており、2015年5月には、1階に郵便局とローソンのコラボ店舗がオープン。
視認性も、ますますアップしますので、来客の多い企業様向きです。
交通アクセスは、大阪市営地下鉄・御堂筋線の「本町駅」2番出口より徒歩2分と抜群の立地。「淀屋橋駅」からも徒歩3分と、フットワークの良いビジネス拠点。
基本的なビルスペックも充実しており、地下には、貸し倉庫やビル内食堂も有り快適なオフィスワークがサポートされています。
無料の貸し出し自転車も、ビジネス街での移動にはありがたいシステムです。
京阪神瓦町ビル 基本情報
| 種別 | 貸事務所(物件番号:42074) | 
|---|---|
| 物件名 | 京阪神瓦町ビル | 
| 住所 | 大阪市中央区瓦町4-2-14 | 
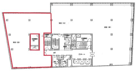
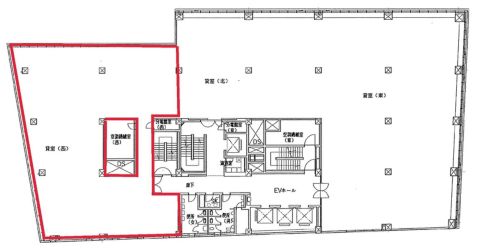
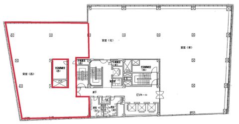
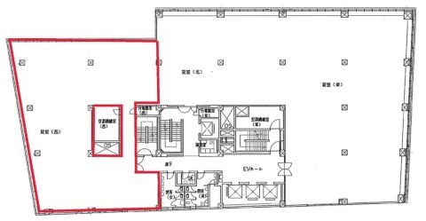
| 所在階 | 3階部分西号室 その他、貸室 | 
| 契約面積 | 91.9 坪・ 303.81 ㎡ | 
| 賃料 | お電話・メールにてお問合下さい。 | 
| 共益費 | お電話・メールにてお問合下さい。 | 
| 月額合計 | お電話・メールにてお問合下さい。 | 
| 敷金 | お電話・メールにてお問合下さい。 | 
|  | |
| 最寄駅 | 御堂筋線                  『
                  本町                  』
                  2                  分 御堂筋線 『 淀屋橋 』 3 分 四ツ橋線 『 本町 』 4 分 | 
| 構造 | 鉄骨鉄筋コンクリート造 9階建 /地下 3 階 | 
| 築年数 | 1962/1 (リニューアル: 平成11年12月 ) | 
| 設備 | |
| エレベーター | 4基 16人乗 | 
| 営業マンの一言大阪ビジネスエリ本町の大型賃貸事務所ビル 御堂筋沿い・御堂筋線「本町」駅スグ!大型の賃貸事務所ビルです。1階に郵便局とローソン有り | |
| 備考 | 免震・耐震補強 | 

※取引態様:仲介
            ※上記、金額は募集条件です。 条件交渉など、詳細についてはお問合せ下さい。
            ※広告作成中に契約済みの場合はご容赦下さい。
            ※図面等現況が相違する場合は現況優先にてご容赦下さい。
京阪神瓦町ビルの所在地周辺
京阪神瓦町ビル その他の部屋情報
入居テナント
物件を再検索する
京阪神瓦町ビル 近隣のよく似た坪数の貸事務所
- 
                    SYNASIA大阪本町ビル(FDS大阪本町)大阪市中央区本町3 
 御堂筋線「本町」徒歩1分
 90.84坪
- 
                    本町サンケイビル大阪市中央区本町4 
 御堂筋線「本町」徒歩2分
 93.04坪
- 
                    南星本館ビル大阪市中央区淡路町4 
 御堂筋線「本町」徒歩4分
 91.13坪
- 
                    南星瓦町ビル大阪市中央区瓦町4 
 御堂筋線「本町」徒歩4分
 95.99坪
- 
                    谷口悦第2ビル大阪市中央区久太郎町3 
 御堂筋線「本町」徒歩1分
 90.81坪
- 
                    THE VILLAGE OSAKA大阪市中央区本町1 
 御堂筋線「本町」徒歩9分
 90.83坪
- 
                    セントピア御堂筋本町ビル大阪市中央区本町3 
 御堂筋線「本町」徒歩1分
 92.28坪
- 
                    本町スクウェアビル大阪市中央区本町4 
 御堂筋線「本町」徒歩3分
 92.29坪

 お問合せリスト・物件リクエスト
 お問合せリスト・物件リクエスト 電話でお問合せ
 電話でお問合せ



 
                  
                















































