新大阪御幸ビル 8階-No.4223
堀中 忠久ホリナカ タダヒサ
新大阪御幸ビルの豆知識
「新大阪御幸ビル」は、大阪市淀川区西中島5丁目にございます、賃貸事務所ビル。
新幹線の新大阪駅や新大阪ワシントンホテルのある新大阪セントラルタワーの南側に位置する8階建て。
それほど大きなビルではありませんが、大阪の玄関口・新大阪駅に近い、フットワーク抜群のビジネス拠点として人気の高いオフィスビルです。
貸室の広さは、約5坪~20坪。
個人事業の方や少人数のテナント様にも、最適です。
また角ビルの為、室内の採光も良く、快適なオフィス空間が確保されています。
JR、地下鉄御堂筋線の「新大阪駅」より徒歩4分の交通至便です。
新大阪御幸ビル その他の貸室情報
新大阪御幸ビル 基本情報
| 種別 | 貸事務所(物件番号:4223) |
|---|---|
| 物件名 | 新大阪御幸ビル |
| 住所 | 大阪市淀川区西中島5-6-13 |
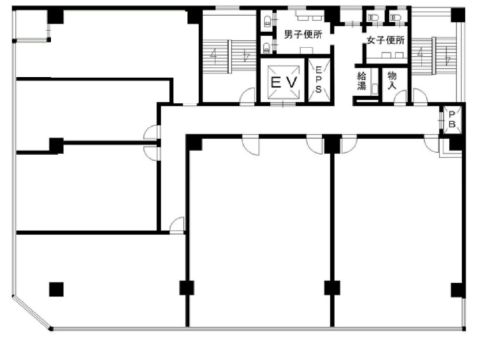
| 所在階 | 8階部分2号室 |
| 契約面積 | 7.13 坪・ 23.58 ㎡ |
| 最寄駅 |
御堂筋線 『
新大阪 』
5 分
東海道本線 『 新大阪 』 4 分 御堂筋線 『 西中島南方 』 6 分 |
| 構造 | 鉄骨鉄筋コンクリート造 8階建 |
| 築年数 | / |
| 設備
|
|
| エレベーター | 1基 |
営業マンの一言 新幹線・新大阪駅正面の賃貸事務所ビル |
|

※取引態様:仲介
※上記、金額は募集条件です。 条件交渉など、詳細についてはお問合せ下さい。
※広告作成中に契約済みの場合はご容赦下さい。
※図面等現況が相違する場合は現況優先にてご容赦下さい。
新大阪御幸ビルの所在地周辺
物件を再検索する
新大阪御幸ビル 関連物件
新大阪御幸ビル 近隣のよく似た坪数の貸事務所
-
ハレオフィス新大阪
大阪市東淀川区東中島1
御堂筋線「新大阪」徒歩4分
9.38坪 -
第7新大阪ビル
大阪市淀川区西中島5
御堂筋線「新大阪」徒歩4分
8.2坪 -
新大阪サンアールビル北館
大阪市淀川区西中島5
御堂筋線「新大阪」徒歩4分
8.12坪 -
オリエンタル新大阪ビル
大阪市淀川区西中島7
御堂筋線「新大阪」徒歩2分
6.23坪 -
新大阪阪急ビル
大阪市淀川区宮原1
御堂筋線「新大阪」徒歩1分
6.86坪 -
SORA新大阪21
大阪市淀川区西宮原2
御堂筋線「新大阪」徒歩4分
6.28坪 -
YSさくらビル
大阪市淀川区西宮原2
御堂筋線「新大阪」徒歩8分
8.94坪 -
新大阪エクセルビル
大阪市淀川区宮原1
御堂筋線「新大阪」徒歩3分
8.31坪 -
新大阪八千代ビル
大阪市淀川区宮原4
御堂筋線「新大阪」徒歩3分
6.29坪 -
PMO EX新大阪・H1O新大阪
大阪市淀川区宮原4
御堂筋線「新大阪」徒歩5分
7.31坪




















