ユニハイム阿波座 1階-No.42351
営業スタッフ紹介
中阪 浩之ナカサカ ヒロユキ
ユニハイム阿波座 基本情報
| 種別 | 店舗・事務所(物件番号:42351) |
|---|---|
| 物件名 | ユニハイム阿波座 |
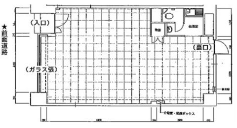
| 住所 | 大阪市西区江之子島1-5-12 |
| 所在階 | 1階部分路面号室 |
| 契約面積 | 21.93 坪・ 72.50 ㎡ |
| 最寄駅 |
中央線 『
阿波座 』
4 分
千日前線 『 阿波座 』 4 分 |
| 構造 | 鉄骨鉄筋コンクリート造 8階建 |
| 築年数 | 1981/5 |
| 設備
|
|
| エレベーター | 1基 |
営業マンの一言 阿波座駅、近くの1階、路面 貸し店舗、貸事務所!新なにわ筋西へ直ぐ上階層は居住用の分譲マンションです。 |
|

※取引態様:仲介
※上記、金額は募集条件です。 条件交渉など、詳細についてはお問合せ下さい。
※広告作成中に契約済みの場合はご容赦下さい。
※図面等現況が相違する場合は現況優先にてご容赦下さい。
ユニハイム阿波座の所在地周辺
ストリートビューを表示▼
物件を再検索する
ユニハイム阿波座 関連物件
ユニハイム阿波座 近隣のよく似た坪数の貸事務所
-
プライムハイツ阿波座
大阪市西区立売堀5
中央線「阿波座」徒歩0.1分
22.18坪 -
フェスタ江戸堀
大阪市西区江戸堀3
中央線「阿波座」徒歩7分
24.95坪 -
オーラムアルジャン阿波座
大阪市西区江戸堀3
中央線「阿波座」徒歩3分
22.21坪 -
インターワンスクエア西本町(旧:山岡)
大阪市西区西本町2
中央線「阿波座」徒歩5分
21.32坪










