A&Sビル 3階-No.42539
中阪 浩之ナカサカ ヒロユキ
A&Sビルの豆知識
「A&Sビル」は、大阪市北区曾根崎新地2丁目にございます、賃貸事務所ビル。
西梅田エリア・国道2号線沿いのミラーウォールの美しい9階建て。
大阪市営地下鉄・四つ橋線の「西梅田駅」9番出口より西へまっすぐ徒歩4分。
その他にも、JR線の「大阪駅」や、各線の「梅田駅」へも徒歩でのアクセスが可能な好立地オフィスです。
エレベーター、個別空調、機械警備セキュリティ、男女別シャワートイレと、ビルスペックも充実。
ワンフロアの面積が約50坪あり、分割プランもございますので、お問合せください。
また、土曜・日曜・祝日もエントランスが開放されています。来店型オフィスやテナント使用も可能です。
国道を挟んで北向かいには、リッツカールトンのはいるハービスOSAKAやブリーゼタワーなど、オフィスビル・商業施設・ホテルなどで構成される超高層ビル“オオサカガーデンシティ”が広がっています。
各ビル地下も、“ガーデンアベニュー”としてつながっており、地下鉄駅などに直結しています。
A&Sビル その他の貸室情報
A&Sビル 基本情報
| 種別 | 事務所(物件番号:42539) |
|---|---|
| 物件名 | A&Sビル
西梅田で土日エントランスオープン!空きでました! |
| 住所 | 大阪市北区曾根崎新地2-6-11 |
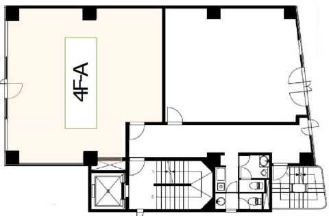
| 所在階 | 3階部分号室 |
| 契約面積 | 46.99 坪・ 155.34 ㎡ |
| 最寄駅 |
四ツ橋線 『
西梅田 』
2 分
御堂筋線 『 梅田 』 8 分 東西線 『 北新地 』 5 分 |
| 構造 | 鉄骨鉄筋コンクリート造 9階建 /地下 1 階 |
| 築年数 | 1989/3 【新耐震基準】 |
| 設備
|
|
| エレベーター | 1基 |
営業マンの一言 西梅田のワンフロア貸し事務所です。大阪桜橋交差点スグ、2号線に面す前面ガラス貼りの美築オフィスビル。視認性良好!! |
|
| 備考 | 日祝、来店可能サービス型オフィス |

※取引態様:仲介
※上記、金額は募集条件です。 条件交渉など、詳細についてはお問合せ下さい。
※広告作成中に契約済みの場合はご容赦下さい。
※図面等現況が相違する場合は現況優先にてご容赦下さい。
A&Sビルの所在地周辺
入居テナント
物件を再検索する
A&Sビル 近隣のよく似た坪数の貸事務所
-
堂島クロスウォーク
大阪市福島区福島1
四ツ橋線「西梅田」徒歩11分
40.41坪 -
横山ビル
大阪市北区梅田2
四ツ橋線「西梅田」徒歩2分
43.0坪 -
尼信梅田ビル
大阪市北区曾根崎新地1
四ツ橋線「西梅田」徒歩2分
45.15坪 -
加州大阪ビル
大阪市北区曾根崎新地1
四ツ橋線「西梅田」徒歩1分
48.06坪 -
GUILD(ギルド)
大阪市北区曾根崎新地2
四ツ橋線「西梅田」徒歩4分
43.0坪 -
新堂島ビル
大阪市北区堂島2
四ツ橋線「西梅田」徒歩2分
40.0坪 -
JPR堂島ウエスト(旧:大阪堂島)
大阪市北区堂島2
四ツ橋線「西梅田」徒歩5分
44.74坪 -
堂島松本ビル
大阪市北区堂島3
四ツ橋線「西梅田」徒歩7分
41.07坪






















