フカキ瓦町ビル 5階-No.42577
中阪 浩之ナカサカ ヒロユキ
フカキ瓦町ビルの豆知識
「フカキ瓦町ビル」は、大阪市中央瓦町3丁目にございます賃貸事務所ビル。
地下鉄御堂筋線の「本町駅」より徒歩3分、「淀屋橋駅」からも徒歩7分と、抜群のロケーション。
洗練された外観と、清潔感あふれる共用部が管理の良さをあらわしています。
エレベーター、機械警備、個別空調、男女別シャワートイレと、基本的なオフィス機能が整っています。
また、順次リニューアルもされており、テナント様の快適なビジネスライフをサポートしています。
ちょっとお出かけに便利な、駐輪スペースもあります。
基準階面積は、約70坪弱ありますが、10坪台からの分割も相談できます。
大通り沿いの大型ビルでは、必然的に大きなスペース貸しになってしまいますので、御堂筋・本町エリアでの10坪・20坪台のコンパクトなオフィス空間は、希少物件。
商都大阪のど真ん中、大阪メインストリート
“御堂筋”から1本東に入ったところに位置した「フカキ瓦町ビル」。
ビジネス拠点としては、最高の立地で、フットワークの良さが、ビジネス効率をUPすること間違いナシです。
フカキ瓦町ビル 基本情報
| 種別 | 貸事務所(物件番号:42577) |
|---|---|
| 物件名 | フカキ瓦町ビル
+ |
| 住所 | 大阪市中央区瓦町3-4-9 |
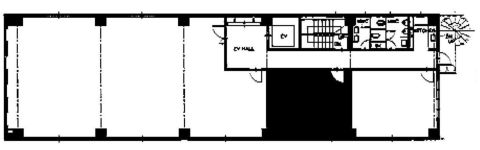
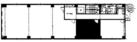
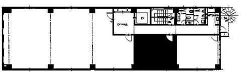
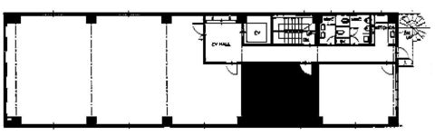
| 所在階 | 5階部分号室 |
| 契約面積 | 8.5 坪・ 28.10 ㎡ |
| 賃料 | 総額
69,800 円 (税抜)・坪単価
8,212 円/坪 (税抜) 総額 76,780 円(税含む) |
| 共益費 | 総額 30,000 円 (税抜)・坪単価 3,529 円/坪 (税抜) 総額 33,000 円 (税含む) |
| 月額合計 | 総額 99,800 円(税抜)・坪単価 11,741 円(税抜) 総額 109,780 円 (税含む) |
| 敷金 | 無し |
| 礼金 | 330,000円(税含む) |
| 費用備考 | 賃貸保証加入要 |
| 最寄駅 |
御堂筋線 『
本町 』
3 分
堺筋線 『 堺筋本町 』 5 分 御堂筋線 『 淀屋橋 』 5 分 |
| 構造 | 鉄骨鉄筋コンクリート造 8階建 |
| 築年数 | 1985/1 【新耐震基準】 (リニューアル: 2015 ) |
| 設備
|
|
| エレベーター | 1基 |
営業マンの一言 大阪本町のリニューアル貸しオフィス大阪メトロ御堂筋線 本町駅徒歩3分 堺筋本町5分 淀屋橋駅利用可能 大阪ビジネス街・本町エリアの中心部、共用部リニューアル済み、管理のよい賃貸事務所ビルです。 |
|

※取引態様:仲介
※上記、金額は募集条件です。 条件交渉など、詳細についてはお問合せ下さい。
※広告作成中に契約済みの場合はご容赦下さい。
※図面等現況が相違する場合は現況優先にてご容赦下さい。
フカキ瓦町ビルの所在地周辺
物件を再検索する
フカキ瓦町ビル 関連物件
フカキ瓦町ビル 近隣のよく似た坪数の貸事務所
-
シルバービル(旧、第一シルバービル)
大阪市中央区安土町3
御堂筋線「本町」徒歩2分
7.5坪 -
七福ビル(淡路町七福ビル)
大阪市中央区淡路町3
御堂筋線「本町」徒歩5分
7.3坪 -
トーア紡第2ビル(トーア紡第二ビル)
大阪市中央区淡路町3
御堂筋線「本町」徒歩5分
9.88坪 -
ドリーム瓦町ビル
大阪市中央区瓦町2
御堂筋線「本町」徒歩5分
9.22坪 -
マスザキヤ瓦町ビル
大阪市中央区瓦町4
御堂筋線「本町」徒歩4分
5.99坪 -
RE-017
大阪市中央区北久宝寺町2
御堂筋線「本町」徒歩7分
8.06坪 -
本町アーバンライフ
大阪市中央区北久宝寺町4
御堂筋線「本町」徒歩4分
8.63坪 -
丸忠第1ビル
大阪市中央区久太郎町3
御堂筋線「本町」徒歩1分
8.0坪 -
谷口悦第2ビル
大阪市中央区久太郎町3
御堂筋線「本町」徒歩1分
9.0坪 -
大阪センタービル
大阪市中央区久太郎町4
御堂筋線「本町」徒歩0分
9.66坪































